Budapest, XVII.kerület


 

Ingatlan adatai

Irányár: 94 900 000 Ft
Típus: ház
Kategória: eladó
Alapterület: 120 m2
Fűtés: gáz (cirko)
Állapota: -
Szobák száma: 5
Építés éve: 1984
Szintek száma: -
Telekterület: 583 m2
Kert mérete: 583 m2
Erkély mérete: 19 m2
Felszereltség: -
Parkolás: -
Kilátás: -
Egyéb extrák:  
-

Részletes leírás

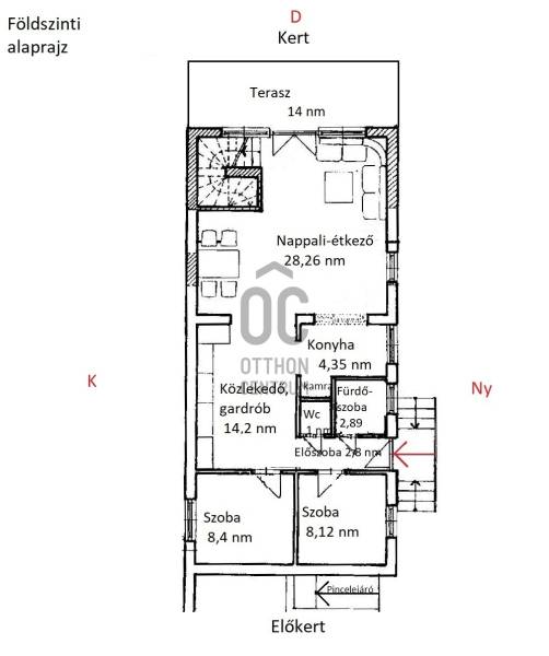
XVII. kerületben Rákoskerten csendes mellékutcában, kiváló közlekedés mellett kínálunk megvásárlásra egy önálló családi házat pincével, összközműves, déli tájolású 583 nm-es telekkel. A lakóépület földszintjén az előszobából nyílik két szoba, egy fürdőszoba, egy külön mellékhelyiség, egy nagyobb közlekedő-gardróbból juthatunk be a konyhába, továbbá a teraszon át kertkapcsolatos, déli tájolású napfényes nappali-étkezőbe. A terasz méretéből adódóan kiválóan alkalmas családi összejövetelekre, nyári ebédekhez.A nappaliból nyílik a kényelmes lépcsőház, innen jutunk fel az emeletre. Itt egy nagy nappali (könnyedén zárható szobává alakítható), egy konyha, étkező-nappali, egy fürdőszoba és egy nagy szoba kapott helyet. Az erkélyről szép kilátás nyílik a kertre és a környékre. A fűtést és a használati meleg vizet turbós kombi cirkó biztosítja. Igény esetén kis átalakítással kétgenerációs ingatlant kaphatunk. A ház alatt egy pince is kialakításra került, tárolásra kiválóan alkalmas. A homlokzat hőszigetelt, a tetőt cserép fedi. Telken belül két autóval kényelmesen parkolhatunk. A környék csendes, kertes házakkal beépített, buszmegálló rövid sétával elérhető, iskola, óvoda, orvosi rendelő, gyógyszertár, művelődési ház, bevásárlási lehetőség szintén a közelben található. Az ingatlan üres, tehermentes, rövid időn belül birtokba vehető.

Hirdető adatai

Hirdető neve: Otthon Centrum
Kapcsolattartó: Sipos Zoltánné
Hirdető telefonszáma: +36 70 469 3031
Honlap: -