Hajdú-Bihar megye, Debrecen


 

Ingatlan adatai

Irányár: 59 000 000 Ft
Típus: lakás (újépítésű)
Kategória: eladó
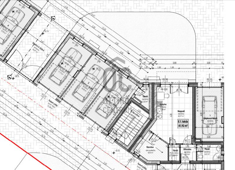
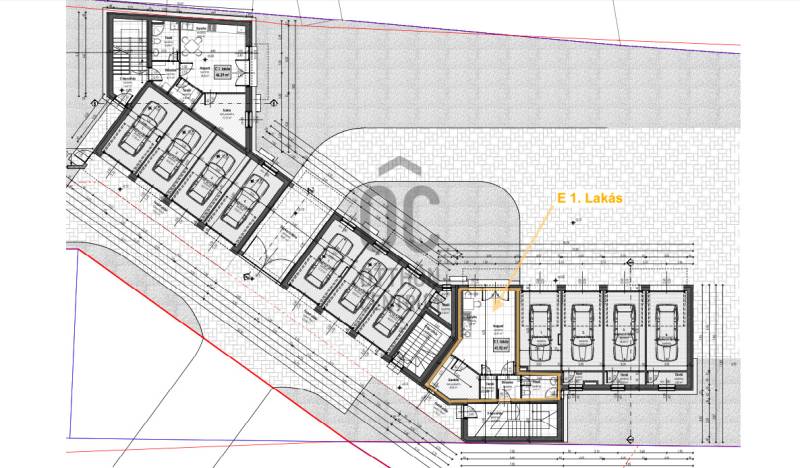
Alapterület: 42 m2
Fűtés: -
Állapota: új
Szobák száma: 2
Építés éve: 2025
Szintek száma: -
Telekterület: -
Kert mérete: -
Erkély mérete: -
Felszereltség: -
Parkolás: -
Kilátás: udvari
Egyéb extrák:  
-

Részletes leírás

Projekt bemutatásaDebrecen – Hatvan utcai kertModern, energiahatékony újépítésű lakások eladók – már csak 3 lakás leköthető!Debrecen nyugati, kertvárosias részén, a Hatvan utcai kertben épül a 3 ütemes, 21 lakásos modern társasház következő épülete.A 3. ütemből már csak 3 lakás elérhető!Lakások41,9–81,8 m² alapterületminden lakáshoz erkély/teraszföldszinti lakások saját kerttelideális első otthonnak, családoknak vagy befektetésnekMűszaki tartalomAA+ energetikai besoroláshőszivattyús mennyezetfűtés–hűtés + padlófűtésPorotherm 30 N+F tégla15 cm grafitos hőszigetelés3 rétegű, argon töltésű nyílászárókalacsony rezsiköltségBurkolatokhidegburkolat: 9 000 Ft/m²melegburkolat: 5 000 Ft/m²Konyhabútor nincs az árban.Az ár kulcsrakész állapotra vonatkozik.GarázsokA földszinten 21 db, 18 m²-es garázs épülIrányár: 13 M FtLokációcsendes, kertvárosias környezetgyors belvárosi megközelítéskiváló infrastruktúrahosszú távon értékálló környékÉpítkezés és átadásépítkezés kezdete: várhatóan 2026 januárműszaki átadás: 2026. III–IV. negyedévFinanszírozáskészpénzhitelCSOK igényelhetőMár csak 3 lakás maradt – gyorsan fogynak a helyek!További információért, alaprajzokért vagy egyeztetésért várom hívását!

Hirdető adatai

Hirdető neve: Otthon Centrum
Kapcsolattartó: Szaszala Zsolt
Hirdető telefonszáma: +36 70 469 3681
Honlap: -