Pest megye, Inárcs


 

Ingatlan adatai

Irányár: 84 900 000 Ft
Típus: ház
Kategória: eladó
Alapterület: 98 m2
Fűtés: -
Állapota: új
Szobák száma: 4
Építés éve: 2026
Szintek száma: -
Telekterület: 725 m2
Kert mérete: 725 m2
Erkély mérete: 21 m2
Felszereltség: -
Parkolás: -
Kilátás: -
Egyéb extrák:  
-

Részletes leírás

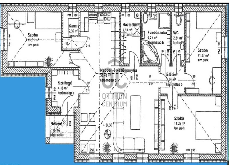
Központi elhelyezkedéssel, kiváló műszaki tartalommal és igényes kialakítással kínáljuk megvételre ezt az új építésű családi ikerházat Inárcson.FÖLDSZINTES! - legkeresettebb kialakítás!Akár Otthon Start 3%-os hitellel!Csendes, barátságos utcájában, a természet közelségével és a béke nyugalmával ölelve várja új tulajdonosát ez az új építésű családi ház.Egy ház, amely nemcsak falakból és tetőből áll – hanem a leendő családi történetek, közös reggelek és napsütötte délutánok ígéretéből.A két ingatlan csupán a fedett kocsibeállónál érintkezik, nincs közös falszakasz és nincs átjárás, így a saját tér, a saját nyugalmas otthon teljesen adott.Főbb jellemzők:Hasznos alapterület: 98 m²A házhoz tartozó telekrész: 725 m²Terasz: 20,57 m²Műszaki tartalom:- Falazat: 30 cm Porotherm- Válaszfalak: 10 cm Ytong- Homlokzati szigetelés: 15 cm- Födémszigetelés: 25 cm- Tető: antracit színű betoncserép- Homlokzat: modern, fehér kialakítás- Nyílászárók: háromrétegű műanyag ablakok- Bejárati ajtó: minőségi, biztonságos kivitel- Hőszivattyús padlófűtés a teljes házban- 3,5 kW-os hűtő-fűtő klíma beépítveBiztonság és közművek- Riasztókiállás előkészítve- Teljes közművesítés- Gáz a telken belül- Elektromos kapu- Térkövezett udvarVálasztható burkolatok és felszerelések (az alábbi értékhatárokig választhatók egyedi igények szerint):- Hidegburkolatok: 7 000 Ft/m²- Melegburkolatok: 7 000 Ft/m²- Beltéri ajtók: 45 000 Ft/db- Szaniterek: 50 000 Ft/db- Kád: 85 000 Ft- Zuhanytelep: 60 000 Ft- 2 db Geberit WC összesen: 140 000 Ft- 50 db kapcsoló / ingatlan- Kültéri fali karos lámpák: 8 000 Ft/dbKivitelezésA munkálatokat megbízható, referenciákkal rendelkező kivitelező végzi, garantálva a magas minőséget és a precíz megvalósítást.Az ár a befejezett állapotra vonatkozik.Tervezett átadás: 2026.03Megtekintés céljából keressen bizalommal!

Hirdető adatai

Hirdető neve: Otthon Centrum
Kapcsolattartó: Pomucz-Nagy Anita
Hirdető telefonszáma: +36 70 469 3296
Honlap: -