Budapest, XXII.kerület


 

Ingatlan adatai

Irányár: 149 000 000 Ft
Típus: ház
Kategória: eladó
Alapterület: 150 m2
Fűtés: -
Állapota: felújított
Szobák száma: 5+2
Építés éve: 1968
Szintek száma: -
Telekterület: 647 m2
Kert mérete: 647 m2
Erkély mérete: 64 m2
Felszereltség: -
Parkolás: -
Kilátás: kertre néző
Egyéb extrák:  
-

Részletes leírás

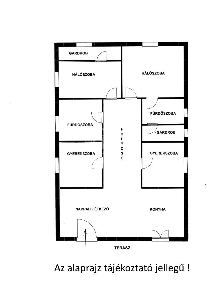
CSAK AZ IRODÁNK KÍNÁLATÁBAN! XXII. kerületben, Budafokon kínálunk eladásra egy egyszintes felújítás alatt álló, 5 szobás, 2 fürdőszobás, 150 m²-es alapterületű családi házat, amely egy 647 m²-es telken helyezkedik el. A házhoz tartozik egy 64 m²-es fedett terasz, amelynek beépítése jelenleg folyamatban van. A teraszon áthaladva a látogató egy tágas nappaliba érkezik, amely étkezővel és modern amerikai konyhával van kialakítva.A ház ideális nagycsaládosok számára is, hiszen a 150 m²-es lakótérben két nagy hálószoba található, közvetlenül mellettük fürdőszobákkal, WC-vel és gardróbszobákkal. Emellett két külön bejáratú gyerekszoba is rendelkezésre áll, így a lakás elrendezése kényelmes és praktikus. A helyiségek pontos elrendezését az alaprajz szemlélteti.Műszaki jellemzők: Az épület az 1960–70-es években épült vegyes falazattal, de 2024–2025-ben teljes körű felújításon esett át. Ennek részeként megtörtént a tetőcsere, vasbeton födém került kialakításra, valamint a teljes gépészet – fűtésrendszer és villanyhálózat – megújult. A nyílászárók cseréje is megtörtént, háromrétegű, hő- és hangszigetelő műanyag ablakok, új bejárati ajtó és teraszajtó került beépítésre. A ház külső falaira 15 cm-es dryvit hőszigetelés került.Fűtés: A fűtés hőszivattyúval történik, minden helyiségben padlófűtéssel.Parkolás: A kertben több autó számára térkövezett felszíni beálló biztosított.Extrák: A házban 4 db hűtő-fűtő klíma található. Pince szinten 110 m² tárolási lehetőség áll rendelkezésre.Környezet: Az ingatlan csendes, kertvárosias környezetben található, kiváló tömegközlekedéssel és közeli bevásárlási lehetőségekkel (ALDI, Campona, Tesco). A közelben óvoda, két tannyelvű iskola és gimnázium is elérhető. Autóbusszal 15–20 perc alatt elérhető a 4-es metró kelenföldi végállomása, a belváros pedig sétatávolságban lévő buszjáratokkal fél óra alatt megközelíthető.Az ingatlan előre egyeztetett időpontban tekinthető meg – akár hétvégén is.Forduljon hozzám bizalommal – várom hívását, érdeklődését!(G.I.)

Hirdető adatai

Hirdető neve: GDN Ingatlanhálózat
Kapcsolattartó: Nyegrutz Tibor
Hirdető telefonszáma: +36-30-250-4987
Honlap: -