Hajdú-Bihar megye, Debrecen


 

Ingatlan adatai

Irányár: 250 000 Ft/hó
Típus: lakás (újépítésű)
Kategória: kiadó
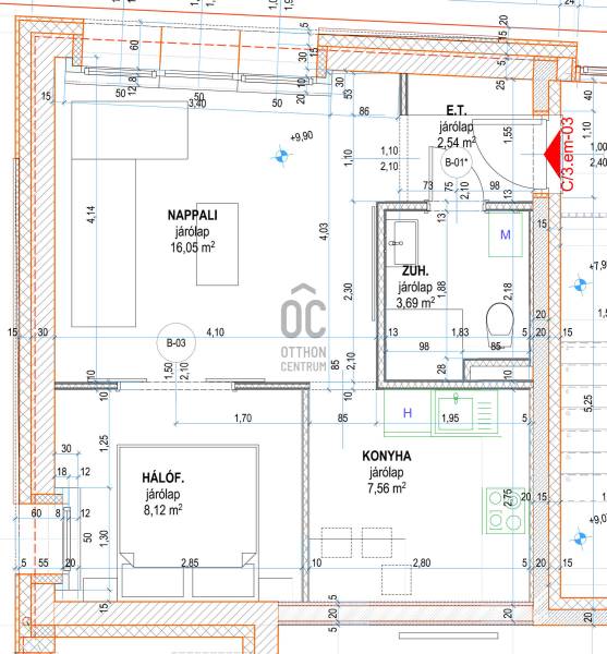
Alapterület: 38 m2
Fűtés: házközponti egyedi méréssel
Állapota: új
Szobák száma: 2
Építés éve: 2025
Szintek száma: -
Telekterület: -
Kert mérete: -
Erkély mérete: -
Felszereltség: -
Parkolás: -
Kilátás: utcai
Egyéb extrák:  
-

Részletes leírás

Debrecen belvárosában, a Miklós utcában kiadó, egy most átadott új építésű liftes társasház lakása.Az ingatlan 38 m2 - es, modern elrendezésű.Helyiségei : nappali, konyha - étkező, szoba, fürdő + folyosó.Még most lett átadva, berendezve, ön lehet az első lakója.A bútorok, gépek, evőeszközök, stb... , minden vadi új, műszaki dolgok garanciás.Műszaki jellemzői : Rolóval szerelt 3 rtg műanyag ablakok, HŐSZIVATTYÚS FŰTÉS PADLÓ HŐLEADÓVAL, MENNYEZET HŰTÉS , fürdő zuhanyzós, mosó - száritógéppel szerelt stb.., ami nagyon fontos, hogy minimális rezsivel fog működni az ingatlan.A lakás gyakorlatilag azonnal birtokba vehető.Lehet bérelni az épület alatti teremgarázsban zárt garázst, díja : 30.000 FtMegbízható, magára és az környezetére igényes bérlőt / bérlőket keresünk, minimum 1 éves időtartamra.Szokásos 2 havi kauciót kérünk.Ha felkeltettem az érdeklődését, kérem, hívjon bizalommal.

Hirdető adatai

Hirdető neve: Otthon Centrum
Kapcsolattartó: Tóth Ferenc
Hirdető telefonszáma: +36 70 716 9076
Honlap: -