Budapest, XVI.kerület


Mátyásföld 

Ingatlan adatai

Irányár: 85 000 000 Ft
Típus: lakás (tégla)
Kategória: eladó
Alapterület: 68 m2
Fűtés: házközponti fűtés
Állapota: -
Szobák száma: 3
Építés éve: -
Szintek száma: -
Telekterület: -
Kert mérete: -
Erkély mérete: -
Felszereltség: -
Parkolás: -
Kilátás: -
Egyéb extrák:  
-

Részletes leírás

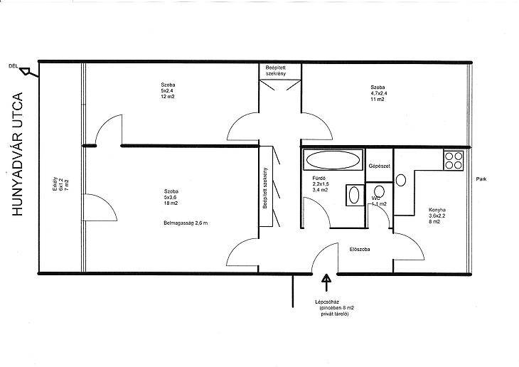
XVI. KERÜLETBEN: MÁTYÁSFÖLDÖN, KÖZEPES ÁLLAPOTÚ, 68 M2, 3 SZOBÁS, I. EMELETI, TÁRSASHÁZI LAKÁS!AZ ÉPÜLET JELLEMZŐI:Az 1970-ben épült, 4 emeletes, 10 lakásos, társasház.A LAKÁS JELLEMZŐI: Eladásra kínálunk egy kivételes adottságokkal rendelkező, tágas és világos lakást, amely három külön nyíló szobájával, kényelmes közlekedőjével és praktikus elrendezésével garantálja a mindennapi komfortot.A lakás külön helyiségben található fürdőszobával és WC-vel rendelkezik, a közlekedőben elhelyezett beépített szekrénysor pedig kiváló tárolási lehetőséget biztosít. A 7 m²-es erkély kellemes kültéri pihenőteret teremt, míg a 8 m²-es pincehelyiség további praktikumot ad az ingatlannak.Az otthon állapota közepes, így új tulajdonosa saját ízlése szerint alakíthatja remek alapot nyújt egy igényes felújításhoz. A nyílászárók eredetiek, redőnnyel felszerelve, a kellemes hőérzetről pedig klímaberendezés gondoskodik. A fűtés házközponti, ami gazdaságos és egyenletes meleget biztosít a hidegebb hónapokban.A parkolás a ház előtt kényelmesen megoldható.FINANSZÍROZÁS:A lakás banki finanszírozással is megvásárolható, melyben irodánk ingyenes tanácsadással áll rendelkezésükre!A hirdetésben szereplő adatok tájékoztató jellegűek.Várjuk hívását munkanapokon 09:00-18:00 óra között.Amennyiben eladná saját ingatlanát, több mint 10 éve működő, kifejezetten a kerületre szakosodott irodánktól, INGYENES ÉRTÉKBECSLÉST kérhet.VEVŐINK RÉSZÉRE A KÖZVETÍTÉS DÍJTALAN!!A hirdetésben szereplő adatok tájékoztató jellegűek.

Hirdető adatai

Hirdető neve: MPD Hungary Kft.
Kapcsolattartó: Kertvárosi Ingatlan Kft.
Hirdető telefonszáma: +36202525648
Honlap: -