Budapest, X.kerület


 

Ingatlan adatai

Irányár: 277 000 000 Ft
Típus: iroda
Kategória: eladó
Alapterület: 550 m2
Fűtés: -
Állapota: -
Szobák száma: -
Építés éve: 1989
Szintek száma: -
Telekterület: -
Kert mérete: -
Erkély mérete: -
Felszereltség: -
Parkolás: -
Kilátás: -
Egyéb extrák:  
-

Részletes leírás

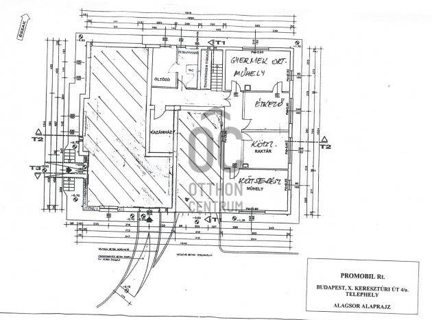
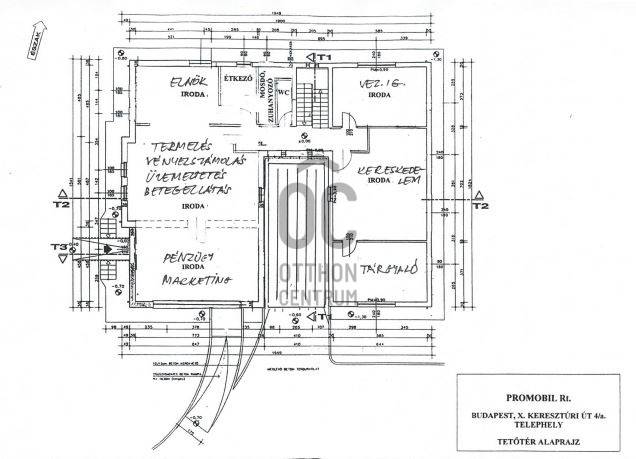
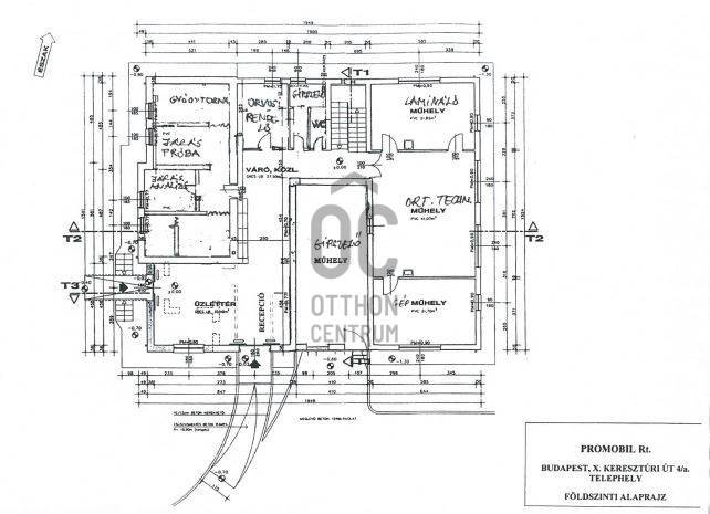
Eladóvá vált egy családi házban működő gyártó cég telephelyeként szolgáló ingatlan!Az ingatlan saját 1020 m2-es telekkel rendelkezik, ami a Keresztúri úton található!BEFEKTETÉSI LEHETŐSÉG! ELADÁS-VISSZABÉRLÉSI KONSTRUKCIÓVAL IS!A tulajdonos, eladás után az ingatlant akár hosszútávú bérleti szerződéssel is visszabérelné.Az ingatlan főbb jellemzői:- Az épület szintjei a földszint, emelet és az alagsor- Fűtése cirkó kazán- Víz, gáz, csatorna bekötve- Minden helyiség fűtött- Az emeleten 6, a földszinten 4, az alagsorban 1 klímaberendezés található- Az ingatlan riasztó- és kamerarendszerrel felszerelt- Az ingatlanhoz tartozik 3 faház, valamint 9 fémkonténer ( 3 konténer a szomszéd ingatlan területén található, érvényes bérleti szerződés jár hozzá)- Az udvaron 10-12 parkolóhely található- Az épület szigeteléssel rendelkezikA földszinti helységek (315 cm-es belmagasság, 255,4 m2) : - előtér/recepció 28 m2-üzlet 23,08 m2-orvosi váróterem -orvosi rendelő-5 kisebb helyiség-1 mellékhelyiség-4 műhely 89 m2- közlekedőAz emeleti helységek (255 cm-es belmagasság, 167 m2) :-6 irodahelyiség-2 mellékhelyiség-1 teakonyha- közlekedőAz alagsori helységek (235 cm-es belmagasság, 128,43 m2):-2 műhely 45 m2-1 raktár 14,46 m2-1 konyha 14,46 m2-1 öltöző 6,8 m2-1 zuhanyzó 2,8 m2-1 mellékhelyiség 1,4 m2-kazánház 12,3 m2- közlekedőAz ingatlan tömegközlekedéssel, személygépjárművel, és tehergépkocsival is kiválóan megközelíthető.A gyártóegységek képei érthető módon nem publikusak, de kérésre elküldöm őket.Az épület családi házon kívül használható irodának, logisztikai központnak, hostel-nek, műhelynek, irodaháznak, és számtalan lehetőség adott a jó közlekedés és elosztás miatt.100 méteres körzetben SPAR, Aldi, egyéb üzletek, valamit benzinkút is található.BKK megállók a közelben:Busz: 44, 45, 67, 277HÉV: H8, H9Éjszakai: 908, 908A, 931

Hirdető adatai

Hirdető neve: Otthon Centrum
Kapcsolattartó: Kópis László
Hirdető telefonszáma: +36 70 412 3271
Honlap: -