Zala megye, Zalaszentgrót


 

Ingatlan adatai

Irányár: 199 000 000 Ft
Típus: ház
Kategória: eladó
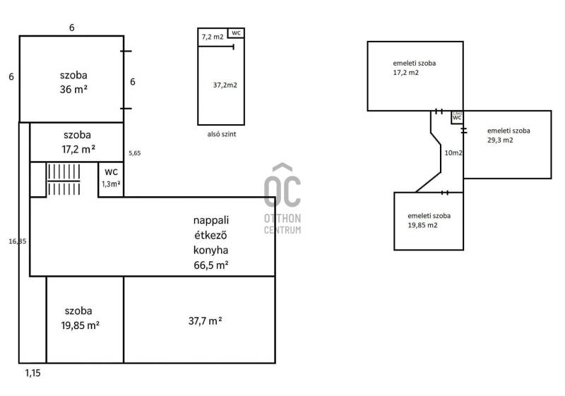
Alapterület: 283 m2
Fűtés: -
Állapota: új
Szobák száma: 6
Építés éve: 2025
Szintek száma: -
Telekterület: 3 521 m2
Kert mérete: 3 521 m2
Erkély mérete: 38 m2
Felszereltség: -
Parkolás: -
Kilátás: -
Egyéb extrák:  
-

Részletes leírás

CSAK AZ OTTHON CENTRUM KIEMELT KÍNÁLATÁBAN!-283 m²-es panorámás luxus ingatlan - 5 privát lakosztály - dupla garázs -3521 m² telek -Egy olyan otthont ajánlunk figyelmébe, ahol a nap első percei is különlegesek. Ahol a kilátás nem csupán háttér, hanem élmény. Ahol a tágas terek, az elegancia és a modern építészeti megoldások együtt alkotnak egy valóban lenyűgöző életteret.Ez a 283 m²-es panorámás luxus ingatlan mindazt nyújtja, amit egy modern, magas igényű család vagy akár több generáció is elvárhat: tér, komfort, technológia, természet, és kivételes minőség.Az ingatlan 2024–2025-ben teljesen átépítésre, újragondolásra és prémium kivitelű megvalósításra került, így gyakorlatilag egy új építésű, magas műszaki tartalommal rendelkező villát kínálunk, egy lenyűgöző 3521 m²-es privát birtokkal.TÖKÉLETESEN MEGTERVEZETT TEREK- 5 HÁLÓSZOBA PRIVÁT FÜRDŐSZOBÁVAL Földszint – 100 m²-Tágas amerikai konyhás nappali, kilátással-2hálószoba, mindegyik privát fürdőszobával-Külön WC-37,7 m²-es fedett terasz páratlan panorámávalTetőtér – 70 m²-3 külön hálószoba , mindegyik saját fürdőszobával-Közlekedő folyosó-Külön WCPinceszint – 48,5 m²-Nagy közösségi / szórakoztató tér-Gépészeti helyiségTökéletes mozi szobának, edzőteremnek vagy klubhelyiségnek.Parkolás -Az udvarban dupla férőhelyes , 36 m2 garázs -Hörmann elektromos garázskapuk-200 m² frissen térkövezett felület-4 személyautónap megfelelő nyitott férőhely3521 m²-es parkosított telek – hangulat, természet és privát tér-A birtok enyhén lejtős, rendezett, kifinomult környezetet biztosít.Gyümölcsösként is funkcionál, a következő fákkal:-cseresznye-meggy-körte-alma-őszibarack, kajszibarackValamint két sor kordonos csemegeszőlő, gondozott, ápolt növényzettel.A telek egyszerre praktikus és esztétikus — családoknak, természetkedvelőknek, állattartóknak vagy egyszerűen csak a privát tér szerelmeseinek. MŰSZAKI TARTALOM-Téglaépület — teljes átépítés (2024–2025)-10 cm homlokzati nikecell szigetelés-15 cm bazaltgyapot födémszigetelés-Új, cserépfedésű tető-Frissen színezett és hőszigetelt homlokzat-Nyílászárók :Minden ablak 3 rétegű, műanyag szerkezetű, elektromos redőnnyel és szúnyoghálóval felszerelt .-Fűtés, hűtés és vízrendszer7 db WiFi-s hőszivattyús klíma – a teljes ház fűtésére és hűtésére300 literes hőszivattyús melegvíztárolóVízlágyító rendszer-Háromfázisú áram + éjszakai tarifa-Automata külső világítás-Kamerarendszer előkészítve-Internet minden szobában-tágas amerikai konyhás nappali -Konyha – teljesen felszerelt, új gépekkelmosogatógép, villany főzőlap, sütő , beépített mikro, páraelszívó, amerikai hűtő, 9 kg-os mosógép Ez a luxus ingatlan azoknak készült, akik nem egyszerűen házat keresnek — hanem életélményt.✓ varázslatos panoráma✓ öt privát szoba ,saját fürdővel✓ teljesen új épületminőség✓ csúcstechnológiás gépészet✓ több mint 3521 m² birtok✓ dupla férőhelyes garázs✓ hibátlan infrastruktúra✓ prémium anyaghasználat✓ tökéletes családi otthon vagy többgenerációs rezidencia✓ ritka, kiemelkedő ingatlan AMENNYIBEN FELKELTETTE ÉRDEKLŐDÉSÉT , VÁROM HÍVÁSÁT AZ ORSZÁG LEGNAGYOBB ÉS LEGELISMERTEBB INGATLANKÖZVETÍTŐ HÁLÓZATA NEVÉBEN!Lakásbiztosításban is otthon vagyunk!Ingatlan és biztosítás egy helyen! Szakértő kollégáink segítenek megtalálni a legmegfelelőbb ajánlatot.

Hirdető adatai

Hirdető neve: Otthon Centrum
Kapcsolattartó: Molnár Henriett
Hirdető telefonszáma: +36 70 412 5631
Honlap: -