Budapest, II.kerület


 

Ingatlan adatai

Irányár: 209 900 000 Ft
Típus: lakás (tégla)
Kategória: eladó
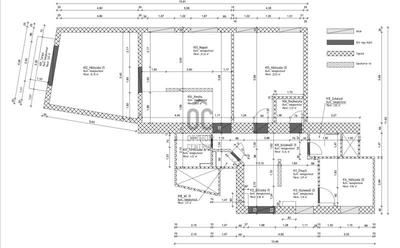
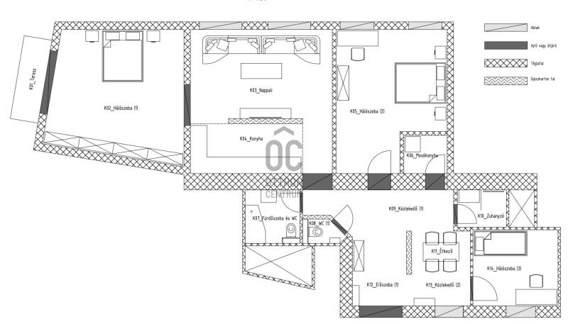
Alapterület: 122 m2
Fűtés: gáz (cirko)
Állapota: -
Szobák száma: 4
Építés éve: 1920
Szintek száma: -
Telekterület: -
Kert mérete: -
Erkély mérete: 4 m2
Felszereltség: -
Parkolás: -
Kilátás: utcai
Egyéb extrák:  
-

Részletes leírás

Világos, frissen felújított otthon tágas terekkel és kifinomult részletekkel. Üdv itthon! LOKÁCIÓBudán, a Duna-part mentén húzódó Árpád Fejedelem útja egészen különleges városi szövet: egyszerre dinamikus és meglepően emberléptékű. A Margit híd közelsége és a kiváló közlekedési kapcsolatok (4-6-os villamos, HÉV, számos buszjárat) gondoskodnak róla, hogy mindig kéznél legyen a város lüktetése – ugyanakkor a rakpart menti sáv már egy másik ritmust diktál. A víz közelsége, a levegő mozgása és a tágas térérzet olyan természetes nyugalmat ad, amit beljebb, a belvárosban már nehéz megtalálni.A közeli Frankel Leó utca kávézói, pékségei és kisüzletei nap mint nap bizonyítják, hogy nem kell nagy láncokhoz fordulni, ha minőségi életet szeretnénk élni. A Margit-sziget reggeli futásra csábít, a Lukács Fürdő történelmi atmoszférájában pedig évszázados nyugalom keveredik a helyiek jól megszokott rutinjával.Életviteli szempontból ez a környék tökéletes választás azoknak, akik szeretnének egy kiegyensúlyozott, élhető, mégis városi környezetben otthonra találni. Parkolás: az épület előtti parkban mindig van hely. Vagy a legközelebbi mélygarázs a Mecset utcában található 5 perc sétára.Befektetői szemmel nézve: az egyik legkeresettebb, stabilan értékálló budai lokáció, ahol a nagyobb alapterületű, felújított lakások iránti kereslet folyamatos. A belváros közelsége, a Duna-parti elhelyezkedés és a kiváló közlekedés tartósan magas bérbeadási potenciált biztosít.FELHÉVÍZEgy előkelő lakónegyed a Duna közelében, pazar villákkal és árnyas zöldterületekkel, mint az Elvis Presley Park. A hévforrások a Frankel Leó utca neoklasszicista épületei és hangulatos kávézói alatt futnak, táplálva az Irgalmasok Veli Bej Fürdőjét és a Lukács Gyógyfürdőt. A közeli keskeny és macskaköves utcák Gül Baba türbéjéhez vezetnek.AZ ÉPÜLET – Budai modernizmus valódi tartalommalAz 1920-as években emelt téglaépület hű tükre annak az időszaknak, amikor a modern budai lakásfogalom már nemcsak funkcionalitást, hanem términőséget is jelentett. A ház karakteres, mégsem tolakodó: egyike azoknak az épületeknek, amelyek beleolvadtak a város szövetébe, és ezzel váltak kortalanul otthonossá.A lépcsőház tiszta, liftes, a lakóközösség rendezett, kulturált. A ház szerkezete masszív, a téglaépítés pedig hőszigetelési szempontból is időtálló választás. A szintek jól tagoltak, és az első emelet ideális: nem kell sokat lépcsőzni, mégis eltávolít a forgalom zajától.A budai rakpart ezen szakaszán ritka, hogy a városias közeg és a lakókörnyezet ilyen kiegyensúlyozott arányban legyen jelen – a ház ezt az egyensúlyt tökéletesen tükrözi.A LAKÁSA lakás belső szerkezete különösen jól átgondolt: a 122 négyzetméteres alapterület minden négyzetmétere funkciót és kényelmet szolgál. Az elosztás ideális akár nagyobb családnak, akár többfunkciós életformának is.Az ingatlan három jól szeparált hálószobát kínál, amelyek közül az egyik saját erkéllyel rendelkezik – ez a szoba tökéletes lehet főhálónak. A nappali a lakás szívében helyezkedik el, és közvetlen kapcsolatban áll az étkezővel és a konyhával, így a közösségi terek természetesen folynak össze. A konyha tágas és önálló helyiség, a főzés itt nem zavarja a nappali életét.A két fürdő külön funkciót tölt be: az egyik zuhanyzós, a másik fürdőkáddal felszerelt. Ezen kívül külön WC is rendelkezésre áll, ami a nagyobb létszámú vagy vendégforgalmat is könnyedén kiszolgálja. A mosókonyha önálló helyiség, ami szintén ritka kényelem ebben a kategóriában.Az előszoba és a két közlekedő jól tagolja a lakást: minden szoba külön nyílik, mégis megmarad a tér folyamatos áramlása. A világos, déli és keleti tájolású helyiségek természetes fényben fürdenek, míg a vastag falak és a gondos anyaghasználat kellemes klímát biztosítanak.Életviteli szempontból:– A három hálószoba valódi privát tereket kínál– A nappali és étkező egy légtérbe komponálva mégis tagolt– A két fürdő és a külön WC maximális komfortot biztosít– A mosókonyha és az önálló konyha a funkcionalitás ritkán látott szintjét képviseliBefektetői szemmel:– A lakás akár három külön nyíló hálószobája és a két fürdő lehetővé teszi a prémium szintű lakásmegosztást– A térkiosztás ideális hosszú távú bérlők vagy egy többgenerációs használat szempontjából is– A funkciógazdag elrendezés értékállóságot és kiadhatóságot is biztosítFELÚJÍTÁS ÉS MŰSZAKI TARTALOMA felújítás a legmagasabb minőségi elvárásoknak megfelelően valósult meg, a lakás minden elemét és részletét átfogva. Teljes körűen megújultak az elektromos és gépészeti rendszerek, melyek korszerű, energiatakarékos megoldásokkal szolgálják a komfortot. A padlófűtéshez kondenzációs gázkazán biztosítja a hatékony, helyiségenként szabályozható hőellátást. Lehetőség van vízlágyító beépítésére is, amely a rendszer utólagos kiegészítéseként szolgálja a még komfortosabb használatot.A klímaberendezések alapcsövezése minden helyiségben kialakításra került, a kondenzvíz elvezetése pedig közvetlenül a csatornahálózathoz csatlakozik. A világítás vezérlése modern, wifi-s relékkel történik, így akár mobiltelefonról is egyszerűen szabályozható. A biztonság érdekében a vagyonvédelmi riasztórendszer kiépítéséhez szükséges alapszerelés már megtörtént. Az eredeti polgári nyílászárók megőrzése érdekében az ablakokat svéd technológiával újították fel, amely jelentősen javítja a hang- és hőszigetelést. Az ablakokra alumínium redőnyök is kerültek, amelyek tovább növelik a komfortérzetet, miközben illeszkednek az épület klasszikus karakteréhez.ENTERIŐRA lakás enteriőrje a letisztult kortárs dizájn és az anyaghasználat finom eleganciájának iskolapéldája. A mennyezetbe integrált rejtett LED világítás és a padkában futó hangulatfények nemcsak térérzetet növelnek, de este otthonos hangulatot teremtenek szinte észrevétlenül. A világítótestek színvilága tökéletesen harmonizál a belső árnyalatokkal: a meleg barna halszálka spc burkolat és a lágy törtfehér falak mellett kellemes kéktónusú felületek teremtenek vizuális egyensúlyt. A fürdőben alkalmazott nagytáblás márványhatású burkolat nem csupán tisztaságot és luxust sugall, hanem hosszú távon is időtálló minőséget képvisel.Ez az élettér nem akar minden áron kitűnni – inkább belesimul a nyugalom és arányosság érzékletes világába.Egy lakás, ami tényleg élni hív – ha szeretnéd megtapasztalni, szívesen körbevezetlek.----------------------------------------------Díjmentes, bankfüggetlen hiteltanácsadással támogatjuk vevő ügyfeleinket a számukra legelőnyösebb finanszírozási döntések meghozatalában. Opcionálisan igénybe vehető kiegészítő szolgáltatásainkkal – mint ügyvédi közreműködés, energetikai tanúsítvány vagy villamos biztonsági felülvizsgálat – teljes körű szakmai támogatást nyújtunk az adásvétel folyamatának minden egyes lépésénél.----------------------------------------------A hirdetésben szereplő információk tájékoztató jellegűek. A tévedés és az árváltoztatás jogát fenntartjuk. Az esetleges elírásokért és technikai hibákért felelősséget nem vállalunk.

Hirdető adatai

Hirdető neve: Otthon Centrum
Kapcsolattartó: Polereczki Szilvia
Hirdető telefonszáma: +36 70 412 4031
Honlap: -