Budapest, X.kerület


 

Ingatlan adatai

Irányár: 431 865 000 Ft
Típus: telek
Kategória: eladó
Alapterület: 3 720 m2
Fűtés: -
Állapota: -
Szobák száma: -
Építés éve: -
Szintek száma: -
Telekterület: 3 720 m2
Kert mérete: -
Erkély mérete: -
Felszereltség: -
Parkolás: -
Kilátás: -
Egyéb extrák:  
-

Részletes leírás

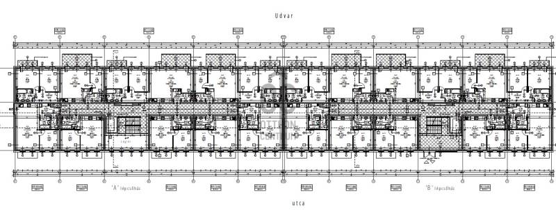
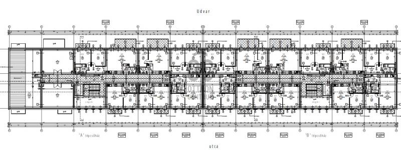
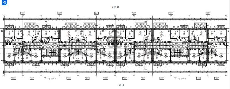
Kőbánya Óhegy parkhoz közeli részén kínálunk eladó fejlesztési területet a hozzá tartozó engedélyezett építési tervvel együtt!Az engedély alapján 61 lakás építhetőTelek területe 3720nmAz épület bruttó területe:5769 Lakások össz nettó alapterülete 3236nmÖvezeti besorolás: Vi-2/13Maximális beépíthetőség:35Eladási ára 1 125 000 € + ÁFA.MegközelítésA leendő ingatlan a Népligettől gépkocsival 12 percre, tömegközlekedéssel pedig 25 percre helyezkedik el. Tömegközlekedéssel a 95, 195 és a 217-es buszjáratokkal lehet megközelíteni. A környék családiházas, zöld környezettel, több nagy park, orvosi rendelő, kormányablak, számos játszótér és kutyafuttató található a közelben. Ideális lehet azoknak, akik a belvárostól távolabb, csendes, kertvárosias lakást keresnek a jövőben és fontos számukra a jó közlekedés.

Hirdető adatai

Hirdető neve: Otthon Centrum
Kapcsolattartó: Demeter András
Hirdető telefonszáma: +36 70 716 9611
Honlap: -