Budapest, VI.kerület


 

Ingatlan adatai

Irányár: 99 900 000 Ft
Típus: lakás (tégla)
Kategória: eladó
Alapterület: 51 m2
Fűtés: gáz (cirko)
Állapota: -
Szobák száma: 2
Építés éve: 1903
Szintek száma: -
Telekterület: -
Kert mérete: -
Erkély mérete: -
Felszereltség: -
Parkolás: -
Kilátás: utcai
Egyéb extrák:  
-

Részletes leírás

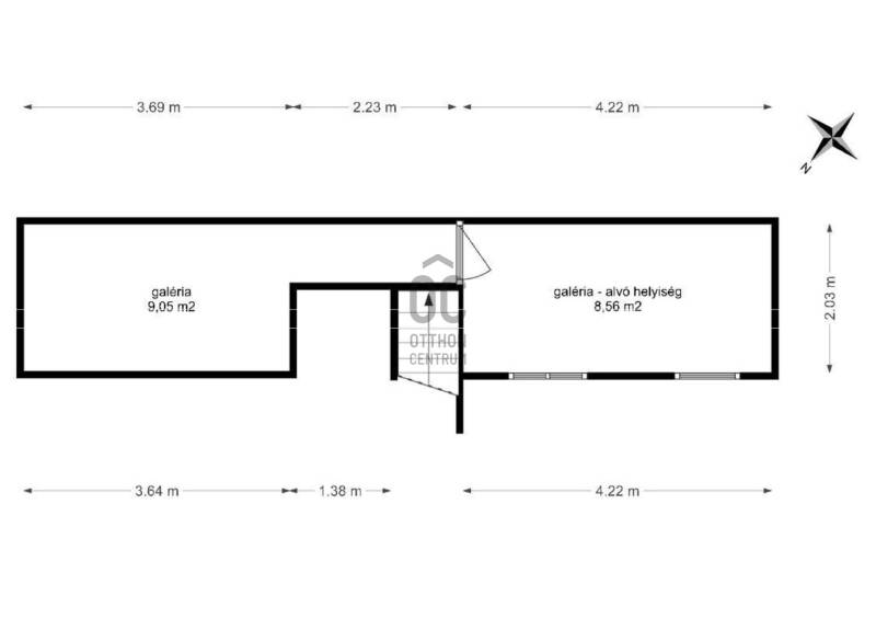
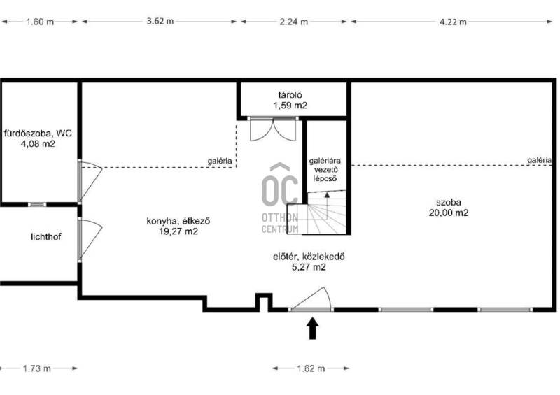
Eladó Budapest leghíresebb sugárútján, a magyar Champs-Élysées-nek is nevezett Andrássy úton, a Cseh Nagykövetség szomszédságában egy, a tulajdoni lapon 51 nm-es, valójában további 18 nm galériával és 4 nm saját lichhoffal rendelkező, mindösszesen 73 nm hasznos területű magasföldszinti lakás.A lakás műszakilag és esztétikailag is felújított, kifogástalan állapotban van, 2017-ben újították fel és alakították át mai formájára. A felújítás lakberendező közreműködésével luxus színvonalon történt, új gépészetet, vezeték hálózatokat, padlófűtést, szanitereket és beépített bútorokat szereltek, a lakás elrendezését teljesen újra gondolták. A külső nyílászárók hőszigetelő üvegezéssel ellátottak. A fűtés és használati melegvíz ellátás kondenzációs gázkazánról megoldott. A nagy belmagasságnak köszönhetően 18 nm-es galéria került beépítésre. A falakon 19. századi képek találhatók az Andrássy út akkori látványával, a lépcsők korlátjai és az étkező lámpatartója szintén eredeti darabok, a régi Andrássy úti épületek stílusában lettek felújítva.Praktikusan kialakított terek jellemzik a lakást. A bejárati ajtón belépve az előtérbe érkezünk, mely egy légteret alkot a bal kéz felé eső a konyhával, étkezővel és a jobb kéz felé eső nappali szobával. Az alsó szinten padlófűtés lett kialakítva. A nappaliban egy térdfallal részben elválasztott dolgozósarok is kialakításra került. Szemközt található a galériára vezető lépcső és egy 2 nm-es háztartási tároló helyiség. A lépcső alatti területek is praktikusan, tárolóként vannak hasznosítva.A fürdőszoba a bejárattól bal kéz felé esik, a konyha területéről közelíthető meg és ugyancsak ezen a részen található a kizárólagosan ehhez a lakáshoz tartozó, szeparált és intim, 4 nm-es lichthof területe, melyen egy hangulatos, megvilágított kiülős teret hoztak létre.A nagy belmagasságnak köszönhetően egy 18 nm-es galéria került beépítésre. A nappali szoba felett egy közel 9 nm-es radiátor fűtéssel szerelt hálótér található, mely ajtóval zárható, szeparált. A hálószobából francia erkélyen át nézhet le a nappaliba. A galéria további 9 nm-es területe a konyha felett helyezkedik el, nyitott, üvegkorláttal szegélyezett. Kinyitható vendégágy és gardróbszekrény található rajta.A felújítás során zuhanyzós fürdőszoba egy légtérben a WC-vel, egy önálló háztartási helyiség mosó- és szárítógéppel, valamint teljesen felszerelt konyha is kialakításra került (beépített sütő, indukciós főzőlap, mosogatógép, hűtőszekrény fagyasztóval). Riasztó rendszer és hűtő-fűtő klíma is telepítésre került.A kiváló lokációjának köszönhetően a lakás befektetésnek is kiváló, havi 420 ezer Ft-os bérleti díjért jelenleg is bérlő van a lakásban.Ha szeretne ehhez a csipetnyi luxushoz hozzájutni, úgy keressen bátran. A lakás irányára 99 millió Ft (250 ezer EURO). Az ingatlan per- és tehermentes, azonnal birtokba vehető.

Hirdető adatai

Hirdető neve: Otthon Centrum
Kapcsolattartó: Gút Zsolt
Hirdető telefonszáma: +36 70 469 3056
Honlap: -