Budapest, V.kerület


 

Ingatlan adatai

Irányár: 126 000 000 Ft
Típus: lakás (tégla)
Kategória: eladó
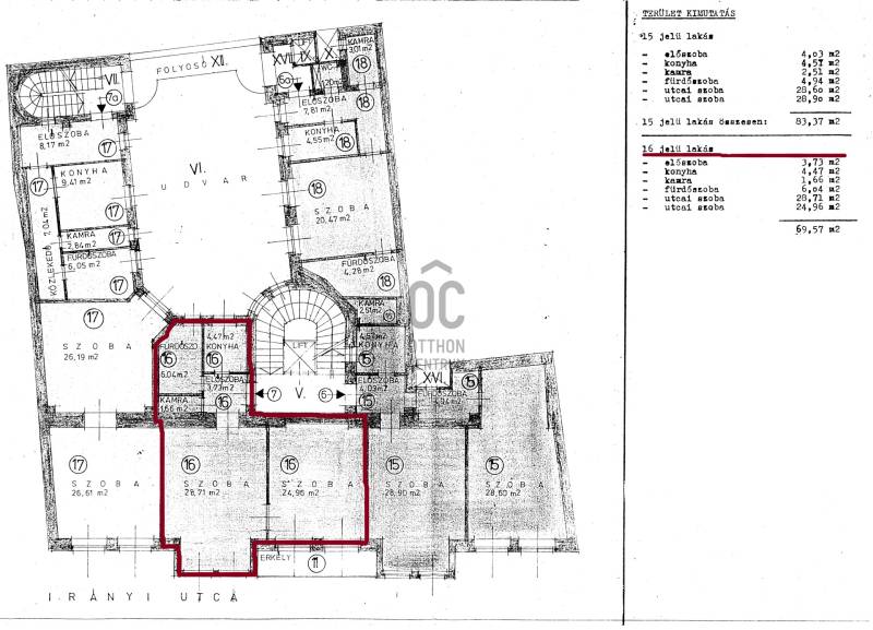
Alapterület: 70 m2
Fűtés: gáz (cirko)
Állapota: felújítást igényel
Szobák száma: 2
Építés éve: -
Szintek száma: -
Telekterület: -
Kert mérete: -
Erkély mérete: -
Felszereltség: -
Parkolás: -
Kilátás: utcai
Egyéb extrák:  
-

Részletes leírás

Eladó Budapest V. kerületében, az Irányi utcában egy gyönyörűen felújított műemlék ház 2. emeletén egy 2 szobás felújítandó lakás. Varázsoljon egy álomotthont, ebből a SZÉP ÉPÜLETBEN LÉVŐ, tágas lakásból és éljen Budapest szívében.A környék kifejezetten elegáns, a Lechner Ödön által tervezett ház 1 percnyire van a Váci utcától. Az utcában exkluzív boltok, éttermek, és minden más is megtalálható, amelyek tovább növelik a kellemes életérzést.A 70 m2-es, 2 szobás, Irányi utca egyik legszebb épületében található. Amennyiben saját ízlésére alakítaná következő otthonát vagy befektetési célból vásárolná, ez a számára ideális ingatlan.Az ingatlanról:-Az ingatlan a LIFTES ház 2. EMELETÉN található, minden szobájának az ablaka utcára néz.-Az új gázcirkó, ami a fűtést és a meleg víz előállítására szolgál.-Az ingatlan per és tehermentes, 1/1-es tulajdonban van-Az ingatlan állapota felújítandó.A lakóház:-A lakóház homlokzata nagyon szép.-A lakóház körfolyosós-LIFT VAN!A környék:-Kimagaslóan jó tömegközlekedési lehetőség a 3 perc séta távolságra található Ferenciek teréről. 3-as metró és számtalan buszjárat elérhető a megállóból.-4 perc sétára található a Jane Haining rakpart, ahonnan bármikor gyönyörködhetünk a Duna és a Budai oldal szépségében.-A lakóház aljában található egy patika, de 5 perc séta távolságon belül, könnyen elérhető nagyobb szupermarket is.-A környéken és a lakóház közvetlen szomszédságában számos kávézó, étterem és pub is található.A Lechner Ödön által tervezett és a Grünwald testvérek által kivitelezett, 1911-eben átadott szecessziós épület a korabeli bérházak között luxuskivitelűnek számított. Nemcsak korszerű villanyvilágítással és fürdőszobákkal szerelték fel, de központi porszívó-berendezéssel is. Ez a ház az építész utolsó autentikus műve. Belépve a szürke és sötétzöld Zsolnay csempeborítású előtérbe, két oldalt halványkék virágos stukkók között, oldalt csiszolt tükör négyzetek fokozzák a szépség élményét.Amennyiben felkeltettem érdeklődését kérem forduljon hozzám bizalommal!

Hirdető adatai

Hirdető neve: Otthon Centrum
Kapcsolattartó: Todoranov Sztefán
Hirdető telefonszáma: +36 70 461 9706
Honlap: -