Budapest, XXII.kerület


 

Ingatlan adatai

Irányár: 108 000 000 Ft
Típus: ház
Kategória: eladó
Alapterület: 81 m2
Fűtés: -
Állapota: -
Szobák száma: 3
Építés éve: 1976
Szintek száma: -
Telekterület: 400 m2
Kert mérete: 400 m2
Erkély mérete: 40 m2
Felszereltség: -
Parkolás: -
Kilátás: -
Egyéb extrák:  
-

Részletes leírás

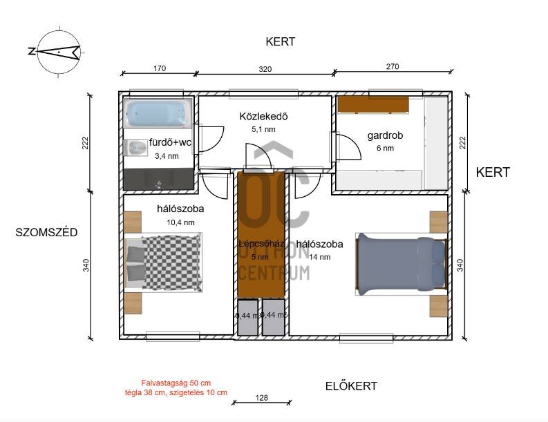
Budapest XXII. kerületében, Budafok csendes, zöldövezeti részén eladó egy utcafrontról nyíló, átjárásmentes sorházi szélső lakás, amely ideális választás családoknak vagy kertet kedvelő fiatal pároknak.Főbb jellemzők röviden:- 81 m² lakótér + 40 m² fedett terasz- 1+2 szoba, kétszintes kialakítás- Saját, kb. 400 m²-es kert- Keleti tájolás, kertre néző- Klíma, kandalló- Fedett autóbeálló- Csendes, zöld környezetA 81 m²-es, kétszintes lakás praktikus elrendezésű:- az alsó szinten nappali, konyha-étkező, valamint külön WC kézmosóval, míg az emeleten két hálószoba, egy gardob szoba és fürdőszoba WC-vel kapott helyet.- A lakáshoz egy 40 m²-es fedett terasz és egy kb. 400 m²-es, keleti tájolású, kertre néző saját kert tartozik – tökéletes hely pihenésre, gyerekeknek vagy kerti programokhoz.Az ingatlan műszakilag felújított, átlagosan jó állapotú:- 2020-ban 10 cm-es külső szigetelés és új kondenzációs kazán (Ariston Chos Premium Evo)- 2022-ben műanyag nyílászárók, redőnyökkel (a teraszajtón elektromos)- 2025-ben klíma az emeleti hálószobában- A fűtés jelenleg Ariston kondenzációs gázkazánnal megoldott, ugyanakkor hőszivattyús fűtésre is van lehetőség (az eszköz átadása opcionális). A hangulatról kandalló gondoskodik a nappaliban.- Téglaépítésű (Porotherm 38-as) sorház, a földszint és emelet között fafödém betonkefnivel.A kertben melléképület is található, amely kiváló tárolásra.Parkolás 1 db fedett beállóval megoldott.Ez az ingatlan otthonos, nyugodt életteret kínál, ahol a városi élet előnyei a kertvárosi nyugalommal találkoznak.

Hirdető adatai

Hirdető neve: Otthon Centrum
Kapcsolattartó: Baji Andrea
Hirdető telefonszáma: +36 70 388 6306
Honlap: -