Hajdú-Bihar megye, Debrecen


 

Ingatlan adatai

Irányár: 119 000 000 Ft
Típus: ház
Kategória: eladó
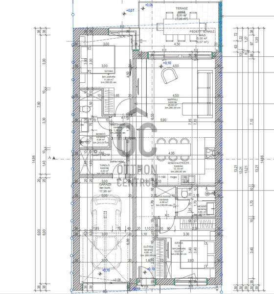
Alapterület: 120 m2
Fűtés: gáz (cirko)
Állapota: új
Szobák száma: 3
Építés éve: 2026
Szintek száma: -
Telekterület: 345 m2
Kert mérete: 345 m2
Erkély mérete: 6 m2
Felszereltség: -
Parkolás: -
Kilátás: -
Egyéb extrák:  
-

Részletes leírás

Ez a modern, új építésű családi ház ideális választás azoknak, akik szeretnének nyugodt környezetben élni, miközben mindössze pár percre vannak a belvárostól. A ház jelenleg szerkezetkész állapotban van, de az ár a kulcsrakész állapotra vonatkozik, így Ön döntheti el a belső elrendezést és a burkolatok stílusát. Főbb jellemzők:- Praktikus elrendezés: 2 hálószoba + nappali-konyha- Fűtés: gázcirkó rendszer, padlófűtéssel- Komfort: előkészített klímaberendezés- Fürdők: 2 fürdőszoba, 2 WC- Terasz és kert: nappaliból nyíló 6 m²-es terasz + 200 m² saját kert- Egy régi kerti kis ház is van a telken, használható tárolás vagy lakhatás céljára felújítás után- Parkolás: garázs és ingyenes közterületi parkolási lehetőségTervezett átadás : 2026.04.30.Lokáció:- Egyetem Műszaki Kara és a Kassai Campus 5 perc sétára- Kiváló infrastruktúra és tömegközlekedési kapcsolatok- Csendes, barátságos környék, mégis a belváros közvetlen közelébenKinek ajánljuk?- Saját otthonnak, családoknak, fiatal pároknak- Befektetőknek – a közeli egyetemi campusok miatt könnyen kiadható ingatlan

Hirdető adatai

Hirdető neve: Otthon Centrum
Kapcsolattartó: Poráczki Ádám
Hirdető telefonszáma: +36 70 716 9411
Honlap: -