Pest megye, Abony


 

Ingatlan adatai

Irányár: 23 000 000 Ft
Típus: ház
Kategória: eladó
Alapterület: 73 m2
Fűtés: elektromos
Állapota: -
Szobák száma: 3
Építés éve: 1960
Szintek száma: -
Telekterület: 890 m2
Kert mérete: 890 m2
Erkély mérete: -
Felszereltség: -
Parkolás: -
Kilátás: -
Egyéb extrák:  
-

Részletes leírás

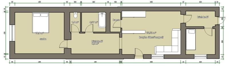
Abony központjához közel eladó egy kertes, családi ház az alábbi paraméterekkel:- vegyes falazatú, vályog és tégla falak,- 73 nm belső hasznos alapterület,- 2 szobás + tágas nappali- étkező,- új műanyag nyílászárók,- új villanyvezetékek,- elektromos fűtés, kandalló,- új laminált parketta, - felújított külső vakolás, - tégla falaknál külső szigetelés is megtörtént,- 890nm telek.A felújítás folyamatban van. Az ingatlan per-és tehermentes. Irodánkban bankfüggetlen hitelügyintézéssel állunk ügyfeleink rendelkezésére.A hirdetésben szereplő információk a megbízótól származnak, azért az iroda felelősséget nem vállal.

Hirdető adatai

Hirdető neve: Otthon Centrum
Kapcsolattartó: Rimóczi Ágnes
Hirdető telefonszáma: +36 70 461 9121
Honlap: -