Pest megye, Tápiószentmárton


 

Ingatlan adatai

Irányár: 64 000 000 Ft
Típus: ház
Kategória: eladó
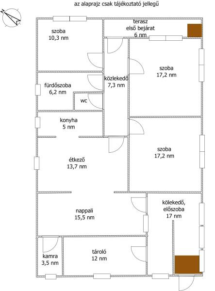
Alapterület: 126 m2
Fűtés: gáz (cirko)
Állapota: -
Szobák száma: 3
Építés éve: 1980
Szintek száma: -
Telekterület: 554 m2
Kert mérete: 554 m2
Erkély mérete: 6 m2
Felszereltség: -
Parkolás: -
Kilátás: -
Egyéb extrák:  
-

Részletes leírás

Fedezze fel ezt a kivételes lehetőséget családosok számára, akik egy tágas, kényelmes otthont keresnek Pest vármegyében, Tápiószentmártonban. Ez a használt, de kiváló állapotú ház 126 négyzetméteres alapterülettel rendelkezik, amely ideális teret biztosít a családi élethez. A 554 négyzetméteres telek rendezett kerttel büszkélkedik, ahol a gyerekek szabadon játszhatnak, míg Ön élvezheti a nyugodt környezetet. Az ingatlan három szobával és egy fürdőszobával rendelkezik, így elegendő helyet biztosít a család minden tagjának. A tágas nappali a ház középpontja, ahol kellemes estéket tölthet el szeretteivel. A ház fűtése gáz cirkóval történik, amely biztosítja a megfelelő hőmérsékletet a hideg téli hónapokban, míg a klímaberendezés gondoskodik arról, hogy a nyári hőségben is kellemes legyen az otthonában. A környék ellátottsága kiváló, hiszen a közeli boltok, óvodák és iskolák mindössze pár percnyi sétára találhatóak, így a mindennapi teendők könnyedén megoldhatóak. A település biztonságos és csendes, ideális környezetet biztosít a családok számára. A közlekedési lehetőségek is kedvezőek; a közeli buszmegálló gyors és kényelmes kapcsolatot biztosít Budapest belvárosával, így a munkába járás sem jelenthet problémát. Ez a tehermentes ingatlan tökéletes választás lehet, ha egy olyan otthont keres, ahol a családja kényelmesen élhet, és élvezheti a vidéki élet előnyeit. Ne hagyja ki ezt a lehetőséget, hiszen az ingatlanok iránti kereslet folyamatosan növekszik, és ez a ház biztosan gyorsan gazdára talál. Amennyiben bármilyen kérdése lenne az ingatlannal vagy a vásárlási folyamattal kapcsolatban, kérem, ne habozzon megkeresni! Bizalommal állok rendelkezésére, hogy segítsek Önnek a legjobb döntés meghozatalában.

Hirdető adatai

Hirdető neve: Otthon Centrum
Kapcsolattartó: Kozmané Zsiros Krisztina
Hirdető telefonszáma: +36 70 388 5436
Honlap: -