Tolna megye, Szekszárd


 

Ingatlan adatai

Irányár: 38 990 000 Ft
Típus: lakás (panel)
Kategória: eladó
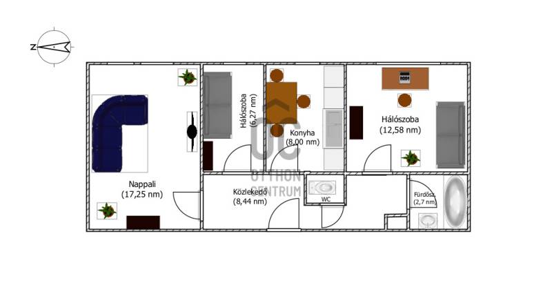
Alapterület: 57 m2
Fűtés: távfűtés
Állapota: -
Szobák száma: 3
Építés éve: 1965
Szintek száma: -
Telekterület: -
Kert mérete: -
Erkély mérete: -
Felszereltség: -
Parkolás: -
Kilátás: utcai
Egyéb extrák:  
-

Részletes leírás

Ha nem szeret lépcsőt járni, azonban vonzónak találja a 3 külünbejáratú szobát, és a keleti felvést, kérem, olvasson tovább!A szekszárdi városközponttól gyalogos távolságra találja ezt a közepes állapotú, magasföldszinten található ingatlant, amelyet a maga igényére alakítva nagyon fog szeretni!A lakást a remek lokáción kívül praktikus elrendezése, és a könnyű megközelíthetősége teszi értékessé.A melegről távfűtés gondoskodik, egyedi mérőkkel.Az egyik szoba klimatizált, a készülék még szavatos.A négy emeletes lakóház előtt nagy számú parkolóhely biztosítja járműve elhelyezését hazaérkezéskor. Az utcában kiválóan kiépített a tömegközlekedés rendszere. A közvetlen közelben számos üzlet, vendéglátóegység, gyermekintézmény és játszótér segíti az Ön és családja mindennapjait, biztosítva ezzel kényelmét, illetve szórakozását.A lakáshoz tartozik egy 13,2 nm-es önálló tároló is!Amennyiben befektetésben gondolkodik, a fent említett paraméterek nagyon fontosak lehetnek!Ha szívesen megnézné a lakást személyesen is, hívjon, mutatom!Várom jelentkezését abban az esetben is, ha egyelőre csupán kérdéseket szeretne feltenni az ingatlannal kapcsolatban.Az Ön elégedettsége a legfontosabb számunkra, és szívesen segítünk minden lépésnél!Teljes körű pénzügyi megoldásokról díjmentesen tájékoztatunk.Minden élethelyzetre végzünk pénzügyi elemzést.Ha vásárolni szeretne, segítünk, hogy ezt a legjobb feltételek mellett tegye; ha eladni szeretné ingatlanát, nézzük meg, hátha érdemes meglévő hitelét átváltani.

Hirdető adatai

Hirdető neve: Otthon Centrum
Kapcsolattartó: Zentainé Pfeiffer Márta
Hirdető telefonszáma: +36 70 716 9251
Honlap: -