Veszprém megye, Felsőörs


 

Ingatlan adatai

Irányár: 159 300 000 Ft
Típus: ház
Kategória: eladó
Alapterület: 175 m2
Fűtés: gáz (cirko)
Állapota: -
Szobák száma: 5+1
Építés éve: 1994
Szintek száma: -
Telekterület: 680 m2
Kert mérete: 680 m2
Erkély mérete: 15 m2
Felszereltség: -
Parkolás: -
Kilátás: -
Egyéb extrák:  
-

Részletes leírás

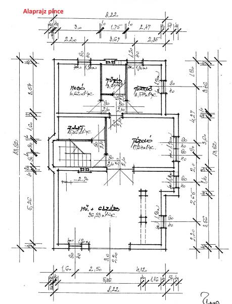
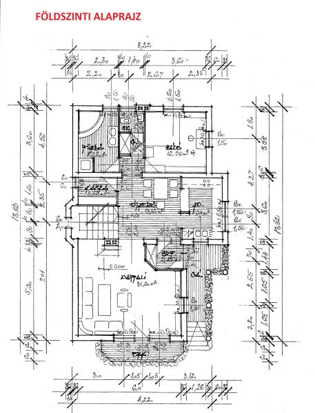
FELSŐÖRSÖN JÓ ÁLLAPOTÚ, BELTERÜLETI CSALÁDI HÁZ ELADÓ Felsőörs rendezett, csendes településrészén, szép családi házak környezetében, aszfaltozott utcában álló belterületi családi ház vált eladóvá. Elhelyezkedése miatt akár lakóingatlanként, de nyaralóként történő használatként is tökéletes választás lehet. Az 1994-ben épült háromszintes (pince, földszint, tetőtér) ház 680 m2-es összközműves telken áll, melynek utcafronti szélessége 15,5 m. A kert parkosított és számos termő gyümölcsfa is található benne.Az épület 5+1 szobás, duplakomfortos kialakítású, egy nagyobb család kényelmes életterét is biztosítani tudja. Tágas, világos helyiségek, optimális elosztás jellemzi. Hasznos alapterülete: 175 m2 lakótér + pince/garázs + három erkély. Helyiségei: a földszinten egy 31,2 m2-es nappali 6 m2-es erkélykapcsolattal, 21,92 m2 konyha + étkező, 3,52 m2 kamra, 8,2 m2-es káddal és zuhanyzóval rendelkező fürdőszoba, külön WC bidével és kézmosóval, egy 12,96 m2-es hálószoba került kialakításra. Az emeleten pedig négy hálószoba (10,8 m2, 15,84 m, és két 19,61 m2 méretűek), zuhanyzós fürdőszoba + WC, egy 20 m2-es közösségi tér kapott helyet, valamint két erkély is. Az egyikről balatoni részpanoráma is látható. A tetőtér kényelmes belmagassága miatt ezek a szobák is jól berendezhetőek. A ház alápincézett, több helyiségre osztott, melyek ablakosak, így a pince természetes fényt is kap. Itt került elhelyezésre a két autó kényelmes tárolására alkalmas nagy méretű garázs, a gázcirkó, egy WC kézmosóval, több tárolóhelyiség. A pince a lakótérből, a garázson keresztül és a kert felőli lejáraton is megközelíthető. Az udvaron is van lehetőség autóval parkolni, valamint a ház előtti térkövezett területen is. Az épület téglaépítésű, Bramac tetőcserép fedésű. A homlokzat- és a lábazat újra szigetelése 2017-ben, a fűtéskorszerűsítés 2019-ben valósult meg. A ház fűtését gázcirkó biztosítja, a hőleadás radiátorokkal történik.Tulajdoni lapon: belterület, „kivett lakóház, udvar” megnevezésű tehermentes ingatlan, gyors birtokbaadás lehetségesElhelyezkedése: buszmegálló 400 m, élelmiszerbolt 1,1 km, általános iskola 1,3 km, óvoda 1,5 km távolságra érhető el. A legközelebbi balatoni strand az alsóörsi, amely 5,7 km, a káptalanfüredi strand 5,9 km. A komolyabb infrastruktúrát biztosító almádi városközpont 10 perc autóúttal megközelíthető. Felsőörs a Balaton-felvidék azon települései közé tartozik, ahonnan – legalábbis a település egy része felől – látni lehet ugyan a Balatont, de saját tóparttal a helység nem rendelkezik. Páratlan természeti adottságú környezetben, a tóparttól mindössze 4 kilométerre fekszik. A csend és nyugalom álomszerű vidéke. A felsőörsi táj karakterét a mai napig is a szőlős- és gyümölcsöskertek, erdővel borított lankák határozzák meg, és a jellegzetes Balaton-felvidéki stílusban épült épületek. Építész- és ingatlanközvetítő irodánk minden hiteles szakmai segítséget meg tud adni, mellyel segíteni tudjuk döntését. Kérje az ingatlan részletes tájékoztató anyagát! Látogasson el http://balatoniingatlanguru.hazbank.hu/ weboldalunkra. Kövesse Balatoniingatlanguru facebook és balatoni_ingatlanguru instagram oldalunkat és iratkozzon fel YouTube csatornánkra http://www.youtube.com/@balatoniingatlanguru8238 ! Balatoni ingatlanguru – több mint közvetítő

Hirdető adatai

Hirdető neve: Balatoni Ingatlanguru
Kapcsolattartó: Margit Molnár
Hirdető telefonszáma: +36707412457
Honlap: -