Heves megye, Hatvan


 

Ingatlan adatai

Irányár: 79 900 000 Ft
Típus: ház
Kategória: eladó
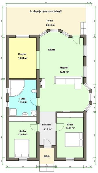
Alapterület: 98 m2
Fűtés: egyéb
Állapota: -
Szobák száma: 3
Építés éve: 2017
Szintek száma: -
Telekterület: 847 m2
Kert mérete: 847 m2
Erkély mérete: 30 m2
Felszereltség: -
Parkolás: -
Kilátás: utcai
Egyéb extrák:  
-

Részletes leírás

Keresed a tökéletes otthont családod számára? Akkor figyelj, mert ezt az ingatlant nem érdemes kihagynod! Kerekharaszt csendes, barátságos utcájában épült 2017-ben 38-as POROTHERM TÉGLÁBÓL + 10 cm-es dryvit hőszigeteléssel ez a kiváló állapotú, használt lakóingatlan, amely minden igényt kielégít. Az ingatlan alapterülete 98 nm, és egy 847 nm-es telken helyezkedik el, így bőven van hely a gyerekeknek játszani vagy a kertészkedésre. Az ingatlanban 2 db hálószoba található, illetve egy tágas nappali, amely kandallós, tökéletes helyszín lehet a közös családi estékhez. A fürdőszoba közel 12 m2, ezért helyet kapott egy sarokkád, egy zuhanyzó és minden egyéb háztartási gép is elfér kényelmesen. A hátsó terasz pedig a nyári estéken garantálja a kellemes, szabadtéri programokat, ahol barátokkal és családdal élvezheted a szép időt. A fűtés pellet kazánnal megoldott, így mindig meleg és otthonos lesz az ingatlan. A nappaliban egy 5 kw-os HŰTŐ-FŰTŐ KLÍMA is biztosítja a kellemes érzetet. A gázcsonk a telken belül található, igény szerint gázkazán is kialakítható. Az ablakok minőségi fából készültek 3 RÉTEGŰ üvegezéssel!A környék kiváló adottságokkal rendelkezik. A közlekedési lehetőségek is kedvezőek: az ingatlan közelében található buszmegálló, amely gyors és kényelmes eljutást biztosít a közeli városokba vagy a fővárosba. Az autóval közlekedők számára pedig könnyen megközelíthető az M3-as autópálya (3 perc), így Budapest kb. 30-35 perc alatt elérhető.Ez a tehermentes ingatlan ráadásul Falusi Csok kompatibilis, így ha gyermekes család vagytok, akkor különösen érdemes megfontolnotok ezt a lehetőséget, hiszen 1-2 kisebb ráfordítás utána egy tökéletes ÚJSZERŰ, MODERN otthonotok lehet, amely kiszolgálja az egész családot hosszú időn keresztül.Ne habozz, ha kérdéseid vannak, vagy szeretnéd megtekinteni ezt a remek otthont, bátran keress meg!

Hirdető adatai

Hirdető neve: Ingatlanmentor powered by Rock Home
Kapcsolattartó: Horváth Tibor
Hirdető telefonszáma: +36 70 467 6871
Honlap: -