Pest megye, Tura


 

Ingatlan adatai

Irányár: 29 900 000 Ft
Típus: ház
Kategória: eladó
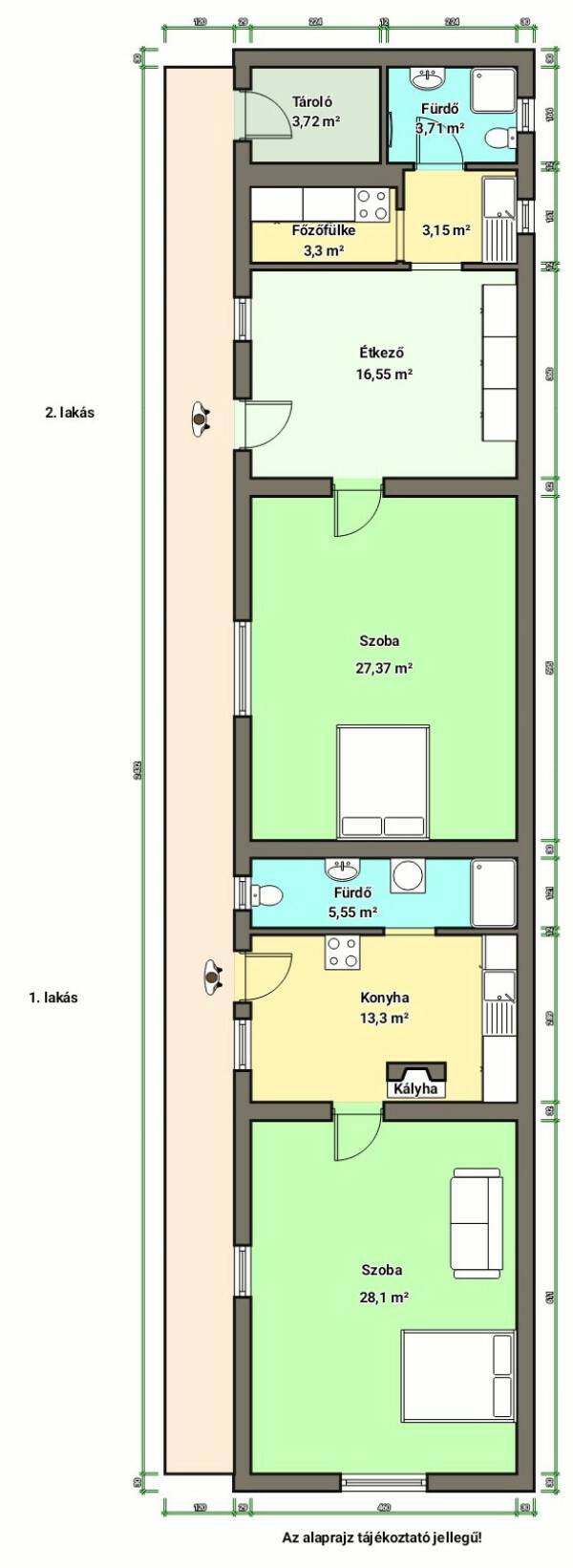
Alapterület: 101 m2
Fűtés: gáz (konvektor)
Állapota: felújítást igényel
Szobák száma: 3
Építés éve: 1940
Szintek száma: -
Telekterület: 921 m2
Kert mérete: 921 m2
Erkély mérete: -
Felszereltség: -
Parkolás: -
Kilátás: utcai
Egyéb extrák:  
-

Részletes leírás

*** 1 db családi ház vételáráért cserébe 2 db LAKÁST KAP! ***Lakjon az egyik 54 m2-es lakrészen és adja ki a másik lakrészt, amely 47 m2-es, ezáltal akár a lakás fenntartása/törlesztője ingyen lehet.Tura központi részén eladó egy felújításra váró régi típusú vályogból épült parasztház. Nagy előnye, hogy jelenleg 2 külön lakrészből áll, összesen nettó 101 m2 + 20-30 m2 tároló és pince tartozik hozzá. A telek mérete 921 m2. Víz, villany és a gáz be van vezetve, viszont a csatorna csak az utcában található. Az elmúlt években a 2 fürdőszoba teljes felújításra került, illetve új 3x16 Amper lett bevezetve szabványosított szekrénybe. A két külön bejáratú lakás részben külön mérőórákkal rendelkeznek. A központi elhelyezkedésnek köszönhetően minden a közelben megtalálható. M3-as autópálya 8-10 percen belül elérhető. Budapest 40-50 percen belül, akár tömegközlekedéssel is.Ha saját célra szeretne ingatlant vásárolni és fontos, hogy két külön lakrész legyen, akkor ezt a lehetőséget ne hagyja ki. Akár befektetésre is alkalmas. További információért hívjon bizalommal!

Hirdető adatai

Hirdető neve: Ingatlanmentor powered by Rock Home
Kapcsolattartó: Horváth Tibor
Hirdető telefonszáma: +36 70 467 6871
Honlap: -