Budapest, XIII.kerület


 

Ingatlan adatai

Irányár: 238 000 000 Ft
Típus: kereskedelmi/ipari ingatlan
Kategória: eladó
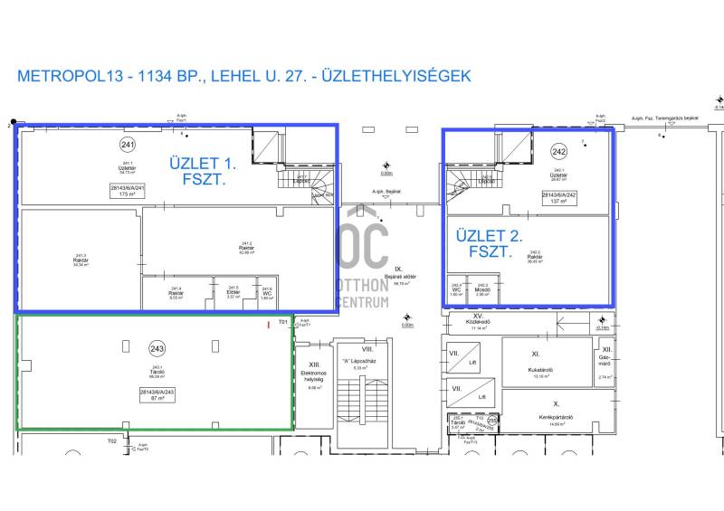
Alapterület: 137 m2
Fűtés: -
Állapota: -
Szobák száma: -
Építés éve: 2025
Szintek száma: -
Telekterület: -
Kert mérete: -
Erkély mérete: -
Felszereltség: -
Parkolás: -
Kilátás: -
Egyéb extrák:  
-

Részletes leírás

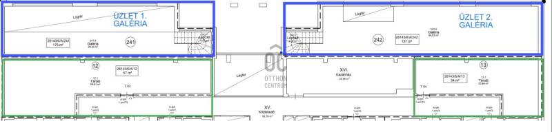
Új építésű üzlethelyiség eladó!Lőportárdűlőn a Belváros - Városliget – Margitsziget – Westend City Center – Váci úti Irodafolyosó vonzásában, új építésű lakóparkok gyűrűjében kínálok megvételre egy új építésű épület földszintjén elhelyezkedő. A kiemelkedő láthatóság és a jelentős forgalom ideális hátteret biztosít üzleti, irodai vagy befektetési hasznosításhoz. Továbbá alkalmas lehet cégközpontnak vagy bemutató teremnek, különböző kereskedelmi vagy szolgáltatást nyújtó üzletnek.Teljes alapterület: 171 m²*Üzlettér: 137 m²*Galérián lévő tároló: +34 m² (igény szerint egybenyitható az üzlettérrel)*Kialakítás: földszint + galéria*Állapot: szerkezetkész – saját igények szerint formálhatóModern műszaki tartalom*Mennyezeti hűtés-fűtés előkészítés*Padlófűtés előkészítésÁr:*Vételár: 238 millió Ft + ÁFAKözlekedés szempontjából is rengeteg előnnyel bír. A közösségi közlekedést tekintve karnyújtásnyira található az M3-as metró, a 12-es és 14-es villamos, illetve számos buszjárat, de az autóval közlekedők számára is könnyedén megközelíthető.Budapest legnépszerűbb irodapiaci lokációja, a Váci úti irodafolyosó közelsége is nagy előnyt jelent, befektetés szempontjából.További információért és a megtekintéssel kapcsolatosan, hívjon bizalommal!

Hirdető adatai

Hirdető neve: Otthon Centrum
Kapcsolattartó: Berzéky Katalin
Hirdető telefonszáma: +36 70 412 3146
Honlap: -