Tolna megye, Szekszárd


 

Ingatlan adatai

Irányár: 150 000 Ft/hó
Típus: lakás (tégla)
Kategória: kiadó
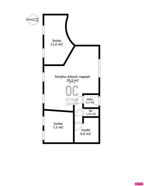
Alapterület: 57 m2
Fűtés: gáz (cirko)
Állapota: -
Szobák száma: 2
Építés éve: 2005
Szintek száma: -
Telekterület: -
Kert mérete: -
Erkély mérete: -
Felszereltség: -
Parkolás: -
Kilátás: utcai
Egyéb extrák:  
-

Részletes leírás

Hosszútávú bérlőjét keressük ennek a Városközpont közelében található lakásnak.A bérlethez tartoznak a fényképeken található bútorok, a konyhában elektromos villanytűzhely, hűtő, és a fürdőszobában mosógép van.A bérlethez tartozik egy nyitott udvari beálló az autójának.Az ideális bérlő:- bejelentett munkabérrel rendelkezik, amit igazolni is tud, valamint a két havi kauciót az első havi bérleti díjjal egy összegben megfizeti- lakók számát a tulajdonos maximum 3 főre korlátozta- a lakásban nem lehet kisállatot tartani, és dohányozni- a lakásban törvénybe ütköző tevékenységet, illetve nagy átjáró forgalommal járó tevékenységet nem lehet végezni- minimum 1 év bérlés, ezen belüli felmondás esetén a tulajdonos a teljes év kifizetését elvárja- minimum 1 fizető képes kereset,- a birtokba adás feltétele a közjegyzőnél aláírt kiköltözési és kötelezettség vállalási nyilatkozat, aminek a felét a leendő bérlő fizeti meg- a kaució nem fordítható sem bérleti díj, sem elmaradt rezsi költség megfizetésére semA lakás bérleti díja 150 00 forint, ami nem tartalmazza a közös költséget. A rezsi ezen felül fizetendő.Amennyiben felkeltette érdeklődését, hívjon bizalommal!

Hirdető adatai

Hirdető neve: Otthon Centrum
Kapcsolattartó: Bihary Szabolcs
Hirdető telefonszáma: +36 70 716 9966
Honlap: -