Zala megye, Keszthely


 

Ingatlan adatai

Irányár: 49 900 000 Ft
Típus: lakás (újépítésű)
Kategória: eladó
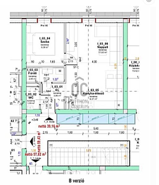
Alapterület: 39 m2
Fűtés: -
Állapota: új
Szobák száma: 2
Építés éve: 2026
Szintek száma: -
Telekterület: -
Kert mérete: -
Erkély mérete: -
Felszereltség: -
Parkolás: -
Kilátás: utcai
Egyéb extrák:  
-

Részletes leírás

Befektetők figyelem! KESZTHELY BELVÁROSÁBAN, A FŐTÉR MELLETT ÚJÉPÍTÉSŰ PRÉMIUM IRODA ELADÓ, AMI LAKÁSNAK IS KIVÁLÓAN ALKALMAS--első emeleti 39m2-es iroda, (AZ IRÁNYÁR 27% ÁFÁT TARTALMAZ)--csendes forgalomtól mentes utcában, a fötér szomszédságában--17 lakásos prémium társasház udvari kocsibeállóval--3 rétegű nyílászárók , elektromos redőnnyel-- burkolatok, járólapok, csempék kiváló minőségüek--fűtésről padlófűtés hőszifattyú, hűtésről légkondi gondoskodik--átadás 2026 augKeszthely a Balaton egyik valódi gyöngyszeme. Nemcsak a szezont jelentő meleg évszakban, hanem az őszi-téli, kora tavaszi időszakban is töretlenül tartja vonzerejét az itt található kulturális és sportolási lehetőségeknek köszönhetően. Szerencsés elhelyezkedését még fokozza közeli fekvése Hévízhez, így a gyógyulni vagy csak welness kikapcsolódásra vágyók is megtalálhatják számításukat ebben az egyébként is igen szép, régi városban.

Hirdető adatai

Hirdető neve: Otthon Centrum
Kapcsolattartó: Pálfi Szabolcs
Hirdető telefonszáma: +36 70 461 9086
Honlap: -