Budapest, X.kerület


 

Ingatlan adatai

Irányár: 165 000 000 Ft
Típus: lakás (tégla)
Kategória: eladó
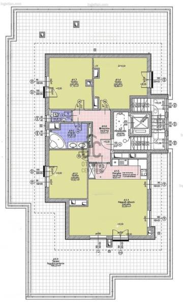
Alapterület: 109 m2
Fűtés: házközponti egyedi méréssel
Állapota: -
Szobák száma: 4
Építés éve: 2012
Szintek száma: -
Telekterület: -
Kert mérete: -
Erkély mérete: 170 m2
Felszereltség: -
Parkolás: -
Kilátás: kertre néző
Egyéb extrák:  
-

Részletes leírás

A Taraliget Lakóparkban (Budapest, X.kerület) azonnal költözhető, kiváló minőségű, \"igazi\" penthouse lakás eladó. A lakóterület 109 nm, hozzá tartozik egy 170 nm-es tetőterasz. Igény szerint a ház alagsorában garázshelyek is vásárolhatók. Mivel az Eladó öt azonos értékű ingatlant értékesít, a leendő tulajdonos szabadon választhat. A kínált penthouse-ok egyenként a négyemeletes épületek legfelső szintjén helyezkednek el, és első használatbavételük 2012 márciusában volt.Igazi Penthouse Életérzés – A Szabadság Bungalója a Tetőn A \"penthouse\" kifejezés alatt gyakran tetőtéri lakásokat értenek, melyek a lenti, standard lakásoktól csupán nagyobb teraszukban különböznek. Ezzel szemben itt valódi penthouse-okat kínálunk: egy szabadon álló bungaló a ház tetején, mely ötvözi az önálló családi ház szabadságát egy lakópark komfortjával. Rendelkezésére áll egy tágas, körbefutó terasz, mely mindig napfényes. A lépcsőn és liften keresztüli megközelítés exkluzív az Ön számára. A tetőteraszon építhető természetes kulissza, és van hely a kényelmi funkcióknak is, mint a szauna, pezsgőfürdő, napozószigetek vagy akár egy játszótér. Vendégei senkit sem zavarnak, és ők maguk is zavartalanul élvezhetik a privát szférát.Építészeti Kultúra és Természetközelség Olyan városi elhelyezkedéseken, mint a Népliget, költségvetési okokból szinte már csak magas épületek, \"lakósilók\" épülnek. A belátható, téglaépítésű lakóházak adta lakáskultúra és a természetvédelmi parkban fekvő lakópark ennek az ajánlatnak az egyediségei.„Gated Community” – A Kellemes Városi ÉletformaA négyemeletes épületek harmonikus elrendezése falusias hangulatú lakóparkot alkot, zöldterületekkel, szökőkutakkal, játszótérrel és pihenőzónákkal.A parkot zárt fal veszi körül, ami maximális biztonságot garantál. A bejutás és behajtás automatikus kapukon keresztül, portaszolgálat ellenőrzése mellett történik.A tervezés elsődleges célja az volt, hogy lehetővé tegye a családi életet, az elszigetelt nyugalmat a lüktető budapesti metropolisz szívében: meleg hangulatú, otthonos életteret teremteni egy harmonikus, kultivált lakóközösségben. Ezt garantálja a professzionális közös képviselet és a barátságos személyzet. Az örökzöld gyepet automatikus öntözőrendszer látja el vízzel, melyet egy 100 méteres mélységben található saját forrásból nyernek.A lakópark kiválóan kapcsolódik a tömegközlekedési hálózathoz: a 28-as és 62-es villamosok, valamint a 9-es busz közvetlenül a komplexum előtt áll meg. A Népliget csomópont és a Keleti pályaudvar mindössze hat megállóra találhatóTara Liget Lakópark – Park a ParkbanA közvetlenül mellette fekvő Népliget, mely a Centennial Parks része, már 1860 óta városi rekreációs park. Ez a 112 hektáros zöld tüdő angol stílusú természeti parkként került kialakításra, szobrokkal és emlékművekkel szegélyezett sétányokkal. A Planetárium nemzeti jelentőségű. Ezt a nagyszerű infrastruktúrát élvezhetik a Lakópark lakói közvetlenül a küszöbük előtt.Ehhez jönnek még a közvetlenül szomszédos sportlétesítmények, az FTC sportpályái és csarnokai, teniszpályák, valamint kerékpárutak. A Kőbányai utca túloldalán egy másik, 6,7 hektáros park is található, ahol már helyet kapott az Eiffel Art Studios (az Erkel Operaház kihelyezett tagozata).A Taraliget Lakóparkban nagyrészt családok, művelt lakosok élnek, köztük számos orvos, ügyvéd, tanár és művész, akik nagyra értékelik a lakópark nyugalmát és kényelmi szolgáltatásait. A kölcsönös tisztelet és odafigyelés jó hangulata érezhető.A Taraliget teljes koncepcióját hosszú távú tőkebefektetési céllal tervezték. A penthouse-ok áremelkedése magasabb, mint a standard lakásoké; ritkán kerülnek felajánlásra, és a kereslet folyamatosan növekszik. Valami különlegeset kínálok Önnek. Egy otthont, amely ötvözi az életminőséget a kényelemmel, a biztonsággal és a garantált tőkebefektetéssel.Ez az ingatlan a \"Hűség csomag\" megbízási portfólióhoz tartozik. Részletek az Otthon Centrum weboldalán.

Hirdető adatai

Hirdető neve: Otthon Centrum
Kapcsolattartó: Gút Zsolt
Hirdető telefonszáma: +36 70 469 3056
Honlap: -