Pest megye, Vác


Vác 

Ingatlan adatai

Irányár: 145 000 000 Ft
Típus: ház
Kategória: eladó
Alapterület: 232 m2
Fűtés: gáz (cirko)
Állapota: felújított
Szobák száma: 4+1
Építés éve: 1986
Szintek száma: -
Telekterület: 760 m2
Kert mérete: 760 m2
Erkély mérete: -
Felszereltség: -
Parkolás: -
Kilátás: udvari
Egyéb extrák:  
-

Részletes leírás

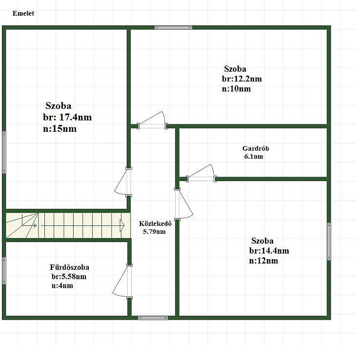
Vác egyik legkedveltebb városrészén, Deákváron kínálunk megvételre egy kétszintes, kiváló állapotban lévő családi házat. Az ingatlan teljes körű felújításon esett át: a teljes villamoshálózatot újra húzták, a nyílászárókat korszerű, hőszigetelt, műanyag, dupla üvegű ablakokra cserélték, a ház szigetelése pedig kimagasló, így rendkívül energiahatékony.A fűtésről háromféle rendszer gondoskodik: padlófűtés biztosítja a kellemes hőérzetet a hidegebb hónapokban, emellett modern gázcirkó, valamint egy fa tüzelésű kazán is rendelkezésre áll, így mindenki megtalálhatja a számára legideálisabb megoldást.A földszinten egy előszoba, egy közlekedő, egy tágas konyha és nappali, valamint egy fürdőszoba WC-vel található. Az emeleten három külön nyíló szoba kapott helyet, továbbá egy gardrób és egy második fürdőszoba WC-vel. A ház belső terei világosak, tágasak és jól átgondolt elrendezésűek, így ideális akár nagyobb család számára is.Az ingatlanhoz tartozik egy 48 négyzetméteres garázs, mely alatt egy szintén 48 négyzetméteres pince is helyet kapott – kiváló lehetőség tárolásra vagy akár műhely kialakítására. Az udvaron két férőhelyes fedett kocsibeálló biztosítja a kényelmes parkolást, a tágas kert pedig ideális lehet családi programokhoz, kerti sütögetéshez vagy akár egy saját veteményes kialakításához is.További különlegessége az ingatlannak, hogy közvetlenül a ház mellett helyezkedik el egy vendéglátó egység, amely szintén az eladó ingatlan része. Ez kiváló lehetőséget kínál vállalkozás indítására, meglévő vendéglátó tevékenység folytatására, vagy akár bérbeadás céljára is.Kérdésével, illetve megtekintési szándékával keresse irodánkat.Amennyiben hitelre lenne szüksége új otthonának megvásárlásához, profi hitelközvetítő kollegáink állnak rendelkezésükre.

Hirdető adatai

Hirdető neve: MPD Hungary Kft.
Kapcsolattartó: La Casa di Vác Kft.
Hirdető telefonszáma: +36202835232
Honlap: -