Békés megye, Gyula


Gyula 

Ingatlan adatai

Irányár: 4 990 000 Ft
Típus: ház
Kategória: eladó
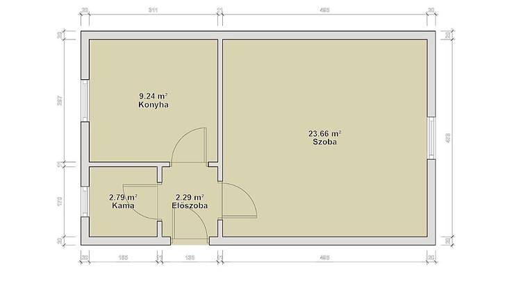
Alapterület: 37 m2
Fűtés: egyéb
Állapota: -
Szobák száma: 1
Építés éve: 1920
Szintek száma: -
Telekterület: 2 500 m2
Kert mérete: 2 500 m2
Erkély mérete: -
Felszereltség: -
Parkolás: -
Kilátás: kertre néző
Egyéb extrák:  
-

Részletes leírás

Gyula, Dénesmajor község részén, mégis közel a városhoz eladó egy körbejárható, saját 2500 nm-es telekkel rendelkező 37 m2 családi ház.
Fejlődő lokáció: a buszállomás néhány perc sétára elérhető, így tökéletes választás azoknak, akik központhoz közeli, jól megközelíthető helyen keresnek felújítandó, de nagy potenciállal rendelkező ingatlant.
Főbb jellemzők:
- A ház állapota nagyon felújítandó, így remek alapot kínál a saját elképzelések megvalósításához.
- A ház téglából épült 1920-1940 körül, beton alappal és víz szigeteléssel ellátott, a tető cserepes és felújítandó. - A telek nincs körbekerítve, 2500 nm, és ásott - Saját villanyóra és vízóra, csatorna és gáz nincs az ingatlanban, viszont az utcában található. 
- A 60 méter széles utcafrontnak köszönhetően autóbeálló is kialakítható.Közelben egy halastó található továbbá, rengeteg önellátó termelés és állattenyésztés lehetősége adott. 

Az ingatlan ideális választás azoknak, akik saját ízlésük szerint, akár bővítéssel szeretnének kialakítani egy modern otthont Gyula egyik legjobb részen.A telek befektetési szempontból kiváló tud lenni, itt napelem parkot is tudunk építeni.

Hirdető adatai

Hirdető neve: MPD Hungary Kft.
Kapcsolattartó: Szentmihályi Házak Ingatlan Kft.
Hirdető telefonszáma: +36704585029
Honlap: -