Veszprém megye, Királyszentistván


 

Ingatlan adatai

Irányár: 92 000 000 Ft
Típus: ház
Kategória: eladó
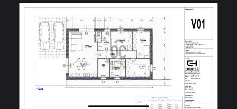
Alapterület: 88 m2
Fűtés: -
Állapota: új
Szobák száma: 3
Építés éve: 2026
Szintek száma: -
Telekterület: 400 m2
Kert mérete: 400 m2
Erkély mérete: 15 m2
Felszereltség: -
Parkolás: -
Kilátás: -
Egyéb extrák:  
-

Részletes leírás

Képzelje el, hogy egy új otthonra talál, amely nemcsak a családja igényeit szolgálja ki, hanem egyben kiváló befektetési lehetőséget is kínál. Királyszentistván szívében, Veszprém vármegyében, modern, kiváló állapotú házt. Az ingatlan alapterülete 88 négyzetméter, amely tágas szobákkal, egy ízléses fürdőszobát és egy 15 négyzetméteres teraszt foglal magában. A ház hőszivattyús fűtéssel , klímával és napelemmel rendelkezik, így bármilyen időjárási körülmények között kényelmesen élhet. A telek mérete 400 négyzetméter, amely lehetőséget biztosít a bővítésre, így Ön saját igényei szerint alakíthatja ki az otthonát. A modern világ igényeinek megfelelően az ingatlan Falusi Csok kompatibilis, így a fiatal családok számára különösen vonzó alternatívát jelent. A házban található LED hangulatvilágítás és integrált szúnyogháló pedig a mindennapi élet kényelmét szolgálja, míg az elektromos autó töltési lehetőség a fenntartható közlekedést támogatja. A környék kiváló ellátottságának köszönhetően minden fontos létesítmény, mint például boltok, óvodák és iskolák, könnyen elérhető közelségben található. Királyszentistván felkapott terület, amely csendes, biztonságos környezetet biztosít családok számára. A környék nyugalma és a természet közelsége ideális helyszínt biztosít a gyermekek számára, ahol szabadon felfedezhetik a külvilágot. A közlekedés szempontjából is előnyös helyzetben van az ingatlan, hiszen a városközpont könnyen megközelíthető autóval, de a tömegközlekedési lehetőségek is széles spektrumot kínálnak. Így Ön könnyedén elérheti a közeli városokat és azok szolgáltatásait, miközben élvezheti a vidéki élet előnyeit. Ez az ingatlan nem csupán egy ház, hanem egy lehetőség, hogy a családja számára egy olyan otthont biztosítson, amelyben örömteli pillanatok születhetnek. Bízom benne, hogy az ingatlan felkeltette az érdeklődését, és szívesen válaszolok bármilyen kérdésére. Keressen bizalommal, hogy együtt megtalálhassuk az Ön álmai otthonát!

Hirdető adatai

Hirdető neve: Otthon Centrum
Kapcsolattartó: Nándori Ferenc
Hirdető telefonszáma: +36 70 716 9571
Honlap: -