Budapest, XVIII.kerület


 

Ingatlan adatai

Irányár: 215 000 000 Ft
Típus: ház
Kategória: eladó
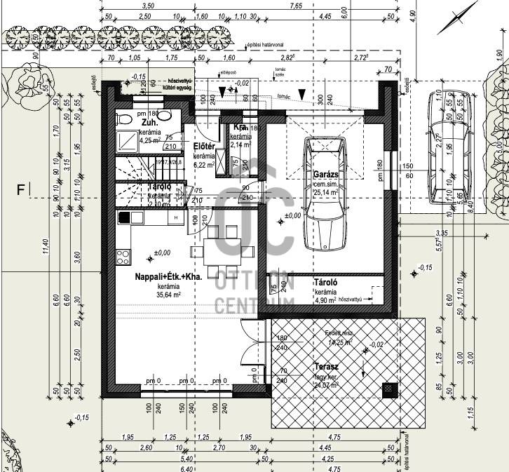
Alapterület: 150 m2
Fűtés: -
Állapota: új
Szobák száma: 4
Építés éve: 2026
Szintek száma: -
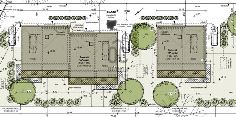
Telekterület: 630 m2
Kert mérete: 630 m2
Erkély mérete: 57 m2
Felszereltség: -
Parkolás: -
Kilátás: -
Egyéb extrák:  
-

Részletes leírás

ALMÁSKERTBEN ÚJÉPÍTÉSŰ GARÁZSOS CSALÁDI HÁZHÁZ:- NETTÓ 150 NM LAKÓTÉR + 25 NM GARÁZS + 55 NM TERASZ- nappali + 3 szoba + 3 fürdőszoba-21 nm SZÜLŐI HÁLÓ - saját gardróbbal és fürdőszobával- 30 cm-es porotherm tégla + 20 cm hőszigetelés- lapostető- 5 légkamrás, antracit műanyag nyílászárók- 10 kWh monoblokkos hőszivattyú + padlófűtés + kuffertartály- fan coil hűtés- hőcserélős szellőztető rendszer- választható burkolatok 10 000Ft/nmTELEK:- 630 nm SAJÁT telek- összközműves- VIACOLOROS JÁRDÁK- ELEKTROMOS KAPUELHELYEZKEDÉS:- XVIII. kerület Almáskert részén- kedvelt kertvárosi részen- Iskola, óvoda, bevásárlási lehetőség valamint buszmegálló pár percreÁtadás:CSOK+HITEL igénylésre alkalmas20 % önerőtől leköthető!Tapasztalt, díjmentes hitel ügyintéző kollégám 20 bank ajánlatával várja Önt!

Hirdető adatai

Hirdető neve: Otthon Centrum
Kapcsolattartó: Andreopulos Niki
Hirdető telefonszáma: +36 70 716 8706
Honlap: -