Budapest, XI.kerület


 

Ingatlan adatai

Irányár: 98 407 Ft/hó
Típus: iroda
Kategória: kiadó
Alapterület: 26 m2
Fűtés: -
Állapota: -
Szobák száma: -
Építés éve: -
Szintek száma: -
Telekterület: -
Kert mérete: -
Erkély mérete: -
Felszereltség: -
Parkolás: -
Kilátás: -
Egyéb extrák:  
-

Részletes leírás

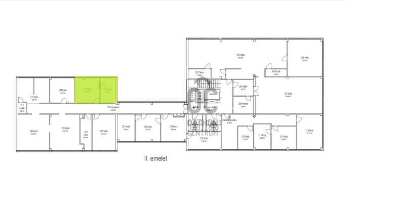
Irodaházban kiadó egy 26 nm-es iroda a XI. kerületben- KelenföldFrekventált helyen, viszont csendes, beépített, zöldövezeti rész mellett helyezkedik el.Az irodaház modern és korszerű, azonban folyamatos fejlesztések várhatók a jövőben.Paraméterek:- 26 nm- II. emelet- 2 helyiségből álló iroda, zárható tárgyalóval- a szinten mosdók, konyha áll rendelkezésre- nagyon világos, elválasztott terek, zöldre néző kilátással- a fűtést, hűtést elektromos klíma berendezés biztosítja- a földszinten recepció található, egész napos koordinálással, vendégek fogadtatásával 8-17 óráig- szintén a földszinten található egy vendéglátó egység, meleg étellel, szendvicsekkel, kávéval tudnak szolgálni - zárt parkoló rész, ahol 1 db beálló hely bérelhető 40.000,- + ÁFA/hó összegért- szinte azonnal költözhető- bérleti díj: 260EUR + ÁFA/hó- havi üzemeltetési költség 1950,- + ÁFA/nmHa felkeltette érdeklődését a kiadó irodablokk, várom hívását a hét bármely napján.

Hirdető adatai

Hirdető neve: Otthon Centrum
Kapcsolattartó: Kurai Kitti
Hirdető telefonszáma: +36 70 461 9246
Honlap: -