Hajdú-Bihar megye, Debrecen


 

Ingatlan adatai

Irányár: 67 990 000 Ft
Típus: lakás (újépítésű)
Kategória: eladó
Alapterület: 42 m2
Fűtés: gáz (cirko)
Állapota: új
Szobák száma: 2
Építés éve: 2026
Szintek száma: -
Telekterület: -
Kert mérete: -
Erkély mérete: 5 m2
Felszereltség: -
Parkolás: -
Kilátás: kertre néző
Egyéb extrák:  
-

Részletes leírás

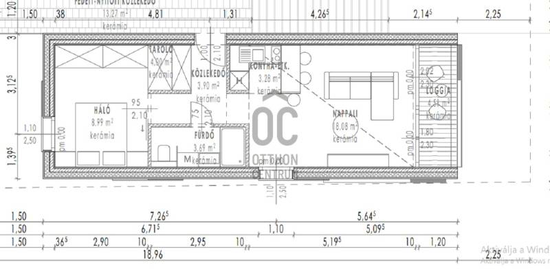
Debrecen – Nyulas. Önálló otthon, kompromisszumok nélkülA+ energetika | 5 lakás | 3 külön épülettömb | Átadás: 2026. III. negyedévEz a projekt azoknak szól, akik nem szeretnének szomszédfalat, zajt vagy tömeget.Mindössze 5 lakás, három különálló épületben. Nincs közös fal a lakások között – a tér, a csend és a privát szféra valóban a tiéd. A környezet zöld és nyugodt, mégis minden könnyen elérhető.Modern műszaki tartalom, A+ energetikai besorolás, időtálló kivitelezés. Minden lakás loggiás, így a saját kültéri tér nem extra, hanem alap.Az ingatlan főbb jellemzői:- 42 nm - Nappali- amerikai konyha, hálószoba, fürdőszoba, tároló, 5 nm loggia- 1. emelet- 36 cm Isospan falazati rendszer + 16 cm grafitos szigetelés- külső nyílászárók 3 rtg üvegezés, 6 légkamrás műanyag profilban- gázcirkó kazán, padlófűtés hőleadással- minden szobában klímaberendezésAz ingatlanhoz garázs külön vásárolható- ára: 14,25 M ftÁtadás: 2026. III. negyedévModern technológia, energiatakarékos megoldások és természetközeli életérzés – mindez egy helyen.További felvilágosításért ill. a megtekintéssel kapcsolatban kérem keressen!Hívjon, ne maradjon le róla !Debrecen, Nyulas, új építés, kertkapcsolat, garázs

Hirdető adatai

Hirdető neve: Otthon Centrum
Kapcsolattartó: Oláh Tünde
Hirdető telefonszáma: +36 70 469 3526
Honlap: -