Budapest, XIV.kerület


 

Ingatlan adatai

Irányár: 79 900 000 Ft
Típus: lakás (tégla)
Kategória: eladó
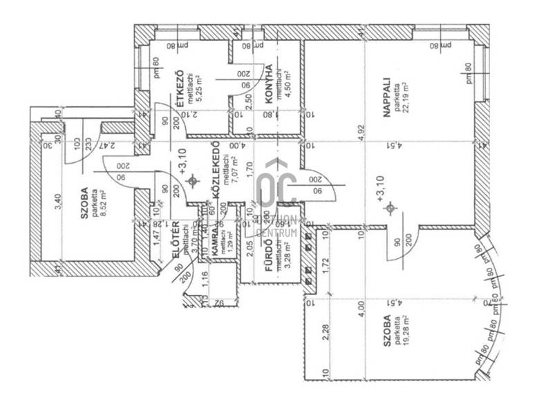
Alapterület: 75 m2
Fűtés: -
Állapota: felújítást igényel
Szobák száma: 3
Építés éve: 1930
Szintek száma: -
Telekterület: -
Kert mérete: -
Erkély mérete: -
Felszereltség: -
Parkolás: -
Kilátás: kertre néző
Egyéb extrák:  
-

Részletes leírás

Zugló méltán kedvelt területén Herminamezőn eladósorba került egy nagypolgári lakás. A gyönyörű, szigetelt villaház kevés lakószámú. A szép, fenyőkkel és gyümölcsfákkal tarkított kertben ehhez a lakáshoz tartozik egy saját 350nm-s kertrész. Az 1. emeleten elhelyezkedő 3 szobás ingatlan felújítandó, mely nagy lehetőség arra, hogy saját elképzelés szerint újítsuk fel bár a jelenlegi beosztása is kitűnő. Különösen a félköríves ablakokkal bíró szoba, a különálló konyha és a nagy nappali. Az előtérből nyílik egy külön wc. Hatalmas ablakai révén és DNY-i fekvésének köszönhetően a lakás napfényes. A villaház kívül-belül hangulatos, ehhez a lépcsőház korabeli korlátai is hozzájárulnak. Tartozik a lakáshoz még egy autóbeálló is a kert utcafronthoz közelebb eső részén. Lokációja szerencsés, hiszen közelben több közlekedési eszköz és bevásárlási lehetőség is megtalálható, ugyanakkora lakás és a kert is csendes. Ha családdal költözne, különösen jó választás lehet. De akár pároknak vagy befektetésre is ajánlom!Várom hívását, ez egy hiánypótló lakás! Le ne maradjon!

Hirdető adatai

Hirdető neve: Otthon Centrum
Kapcsolattartó: Deák Zsuzsanna
Hirdető telefonszáma: +36 70 716 8831
Honlap: -