Budapest, XI.kerület


 

Ingatlan adatai

Irányár: 1 640 063 Ft/hó
Típus: kereskedelmi/ipari ingatlan
Kategória: kiadó
Alapterület: 190 m2
Fűtés: -
Állapota: -
Szobák száma: -
Építés éve: -
Szintek száma: -
Telekterület: -
Kert mérete: -
Erkély mérete: -
Felszereltség: -
Parkolás: -
Kilátás: -
Egyéb extrák:  
-

Részletes leírás

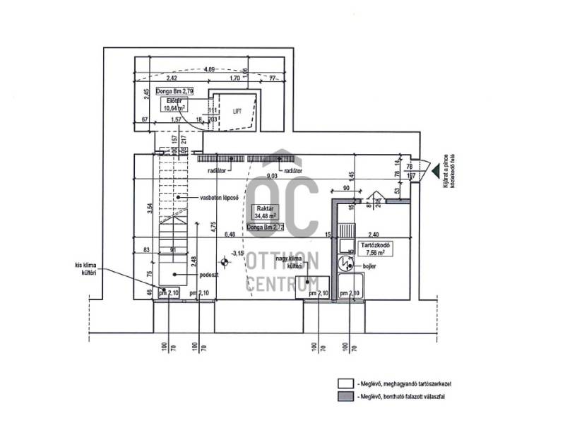
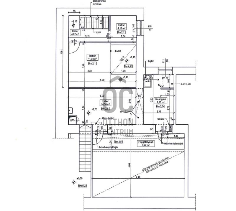
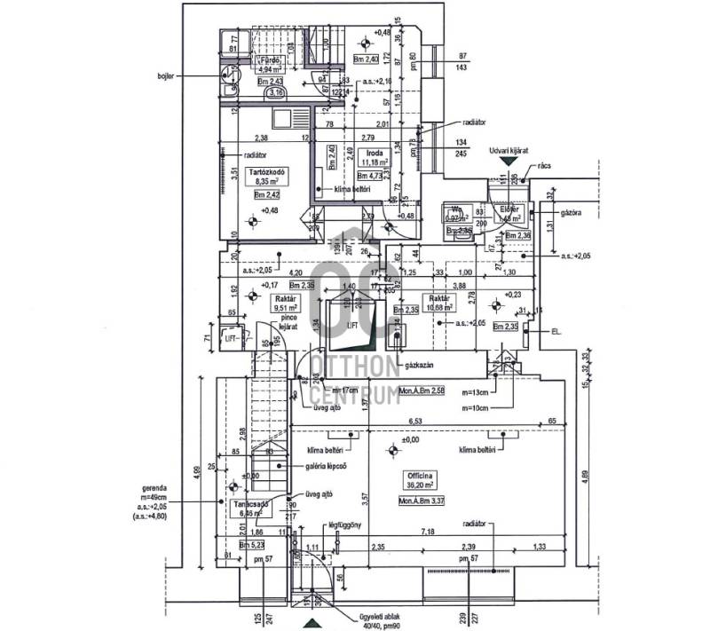
Kiadó egy kivételes adottságokkal rendelkező üzlethelyiség Budapest egyik legforgalmasabb kereskedelmi csomópontjában, a XI. kerület szívében, a Móricz Zsigmond körtéren.Az üzlethelyiség földszinti területe kb 90 m², amely tágas, jól alakítható eladótérrel és nagy méretű, utcafronti portállal rendelkezik. Emeleti része 50 m², mely, igény szerint tovább bővíthető, így akár galériás, irodai vagy vendégtérként is hasznosítható. Pince területe 50 m² ami ideális raktár, előkészítő helyiség vagy egyéb kiszolgáló funkciók számára. Az üzlethelyiség nagy utcai portállal rendelkezik, amely közvetlenül a körtér egyik villamosmegállójára néz, így garantált az egész napos, intenzív gyalogosforgalom. Közelben található továbbá a villamosmegálló zebrája és a 4-es metró feljárata is. Az ingatlan adottságainak és elhelyezkedésének köszönhetően ideális lehet kiskereskedelmi egységnek (üzlet, bemutatóterem), vendéglátóhelynek (kávézó, pékség, street food, pizza, tészta), de ideális szolgáltató tevékenységnek is. Az üzlethelyiség előtt terasz kialakítására is van lehetőség, ami különösen vonzóvá teszi vendéglátó funkció esetén. Ez az ingatlan kiváló választás mindazok számára, akik frekventált, prémium lokációban, kiemelkedő láthatósággal és rugalmasan alakítható térrel keresnek üzleti lehetőséget Budapest egyik legpezsgőbb csomópontjában.

Hirdető adatai

Hirdető neve: Otthon Centrum
Kapcsolattartó: Wild Péter
Hirdető telefonszáma: +36 70 716 9266
Honlap: -