Jász-Nagykun-Szolnok megye, Jászberény


 

Ingatlan adatai

Irányár: 58 900 000 Ft
Típus: ház
Kategória: eladó
Alapterület: 83 m2
Fűtés: -
Állapota: új
Szobák száma: 4
Építés éve: 2025
Szintek száma: -
Telekterület: 700 m2
Kert mérete: 700 m2
Erkély mérete: 19 m2
Felszereltség: -
Parkolás: -
Kilátás: udvari
Egyéb extrák:  
-

Részletes leírás

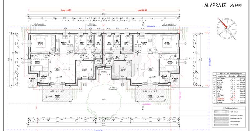
Eladó Jászberény kedvelt részén, a Bársony utcában egy modern kialakítású, egyszintes, új építésű ikerház mindkét lakása, külön-külön vagy akár együtt is!Telekméret: 350 m²/ ikerfél Lakásonkénti hasznos alapterület: 83,2 m²Saját gépkocsi beállóTágas saját zöldfelületFőbb műszaki jellemzők:Új építés (2025), kiváló minőségű anyaghasználat-Korszerű Riello 8KW hőszivattyús fűtésrendszer- 30cm ásványgyapot födémszigetelés-Teljes közműellátottság: víz, csatorna, elektromos áram, földgáz ( utcán)-Külön mérőórák lakásonként-Saját, szeparált kert és bejárat mindkét lakáshoz-Csendes, családbarát környékHidegburkolatok: 4.000Ft/m2Melegburkolatok: 4.000/m2Kád vagy zuhanyzó: 40.000 FtCsaptelepek: 25.000 Ft Beltéri ajtók: 50.000 FtZsalu kerítés színezve, elektromos kapu előkészítésKonnektorok: szobánként 3db, nappali 4db, konyha 6dbLámpák: szobánként 1dbÁrak:Utcafronti lakás (1-es lakás): 58,9 millió FtHátsó lakás (2-es lakás): 59,9 millió FtA lakások ideálisak családoknak, pároknak vagy akár befektetés céljára is, hiszen az elhelyezkedés, a modern kialakítás és az alacsony fenntartási költségek garantálják a hosszú távú értékállóságot.További információ és megtekintés egyeztetés telefonon! A komplett tervdokumentáció rendelkezésre áll.

Hirdető adatai

Hirdető neve: Intor Ingatlan Powered By RH
Kapcsolattartó: Kollár Ábel Gergő
Hirdető telefonszáma: +36 70 412 5808
Honlap: -