Hajdú-Bihar megye, Téglás


 

Ingatlan adatai

Irányár: 85 000 000 Ft
Típus: ház
Kategória: eladó
Alapterület: 94 m2
Fűtés: -
Állapota: új
Szobák száma: 4
Építés éve: 2025
Szintek száma: -
Telekterület: 300 m2
Kert mérete: 300 m2
Erkély mérete: 18 m2
Felszereltség: -
Parkolás: -
Kilátás: -
Egyéb extrák:  
-

Részletes leírás

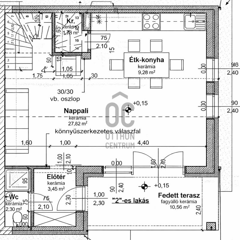
Tégláson prémium, azonnal költözhető ikerház eladó Debrecen közelébenHa egy modern, energiatakarékos és nyugodt környezetben lévő otthont keresel Debrecen közelében, akkor ez az ingatlan tökéletes választás lehet.Téglás egyik csendes, rendezett lakóparkjában kínálunk eladásra egy 2025-ben átadott, prémium kivitelezésű ikerházat, amelyet a Téglás Centrum Kft épített.Az ingatlan elhelyezkedése különösen kedvező: Debrecen és Nyíregyháza mindössze kb. 20 perc autóútra, így a városi infrastruktúra gyorsan elérhető, miközben a mindennapokat egy nyugodt, családbarát környezetben élvezheti.Főbb jellemzők• 94 m² lakótér• 11 m² fedett terasz• 7 m² erkély• nappali + 3 hálószoba• 2 fürdőszoba (zuhanyzó és kád) Bruttó 117 m2A 94 m²-es lakótér átgondolt elrendezésű:tágas nappali, 3 külön nyíló hálószoba és 2 fürdőszoba (zuhanyzóval és káddal) biztosít kényelmes életteret akár egy nagyobb család számára is.A nappaliból közvetlen kijárat nyílik a 11 m²-es fedett teraszra, ahol kellemesen tölthetők a reggeli kávézások vagy a nyugodt esti beszélgetések. Az emeleten található 7 m²-es erkély további kikapcsolódási lehetőséget kínál.Műszaki tartalom• 15 cm grafitos hőszigetelés• korszerű hőszivattyús fűtési rendszer• energiatakarékos modern gépészet• 3 rétegű, antracit nyílászárók• elektromos kapu és kaputelefon• térkövezett autóbeálló• teljesen körbekerített, önálló udvarExtrák• azonnal költözhető• bútorozott állapotban eladó• egyedi, prémium beépített konyhabútor gépekkel• beépített gardrób és előszobaszekrény• modern, magas minőségű burkolatokA környék infrastruktúrája kiváló: Lidl, Penny, iskola és óvoda rövid távolságon belül elérhető.Ez az ingatlan ideális választás azok számára, akik modern, alacsony fenntartási költségű és azonnal költözhető otthont keresnek Debrecen közelében.

Hirdető adatai

Hirdető neve: Otthon Centrum
Kapcsolattartó: Nemes Edit
Hirdető telefonszáma: +36 70 716 9906
Honlap: -