Hajdú-Bihar megye, Debrecen


 

Ingatlan adatai

Irányár: 119 000 000 Ft
Típus: ház
Kategória: eladó
Alapterület: 159 m2
Fűtés: gáz (cirko)
Állapota: -
Szobák száma: 6
Építés éve: 2006
Szintek száma: -
Telekterület: 320 m2
Kert mérete: 320 m2
Erkély mérete: 6 m2
Felszereltség: -
Parkolás: -
Kilátás: -
Egyéb extrák:  
-

Részletes leírás

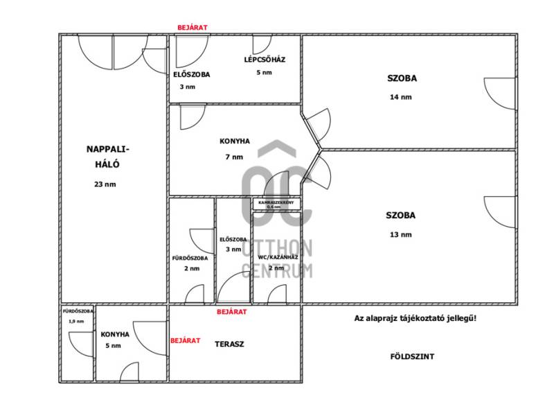
Debrecen közkedvelt, családbarát városrészében, a Biharikertben eladó egy 159 m²-es, gázfűtéses, klimatizált ikerház, 320 m²-es saroktelken.Bár az ingatlan ikerházként szerepel, kialakításának köszönhetően szinte teljesen különálló épület, mindössze egy fal érintkezik a szomszédos ingatlannal, így az otthon nyugodt, privát életteret biztosít.Különlegessége, hogy 3 lakrészből áll, amelyek külön bejárattal is rendelkeznek, ugyanakkor igény szerint teljesen egyben is használhatók, így rugalmasan alakítható az új tulajdonos elképzelései szerint.Ideális választás:- több generáció együttélésére- befektetésre vagy kiadásra- szépségszalon, iroda vagy otthoni vállalkozás kialakítására.Az ingatlan elrendezése:Alsó szint – 2 lakrész:1. lakrész – 30 m²- világos nappali hatalmas ablakokkal- galériás hálórész- konyha- zuhanyzós fürdőszoba WC-vel2. lakrész – 49,5 m²- előszoba- konyha- 2 szoba- zuhanyzós fürdőszoba- WC / kazánház- közlekedőEmeleti lakrész: – 79,5 m²- 2 szoba- nappali–étkező- konyha- zuhanyzós fürdőszoba- külön WC- közlekedőFelújítások – 2021Az ingatlan több korszerűsítésen esett át:- alsó és felső szinten 1-1 klíma került beszerelésre- műanyag bejárati ajtók- 10 cm-es szigetelés- három fürdőszoba új burkolatot kapott- Immergas gázkazán- fedett terasz polikarbonát borítássalTovábbi előnyök- 320 m²-es saroktelek- 3 külön bejáratú lakrész- rugalmasan alakítható elrendezés- tehermentes ingatlan Megtekintéssel kapcsolatban hívjon bizalommal a hét bármely napján!

Hirdető adatai

Hirdető neve: Otthon Centrum
Kapcsolattartó: Varga Ágnes
Hirdető telefonszáma: +36 70 469 3906
Honlap: -