
| Irányár: | 59 900 000 Ft |
| Típus: | ház |
| Kategória: | eladó |
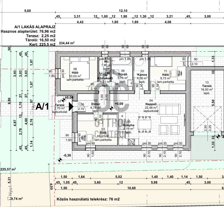
| Alapterület: | 77 m2 |
| Fűtés: | - |
| Állapota: | új |
| Szobák száma: | 4 |
| Építés éve: | 2026 |
| Szintek száma: | - |
| Telekterület: | 226 m2 |
| Kert mérete: | 226 m2 |
| Erkély mérete: | 3 m2 |
| Felszereltség: | - |
| Parkolás: | - |
| Kilátás: | - |
| Egyéb extrák: | |
| - | |