Pest megye, Nyáregyháza


 

Ingatlan adatai

Irányár: 82 990 000 Ft
Típus: ház
Kategória: eladó
Alapterület: 93 m2
Fűtés: -
Állapota: új
Szobák száma: 4
Építés éve: 2026
Szintek száma: -
Telekterület: 500 m2
Kert mérete: 500 m2
Erkély mérete: 9 m2
Felszereltség: -
Parkolás: -
Kilátás: -
Egyéb extrák:  
-

Részletes leírás

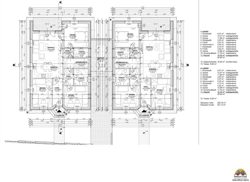
ÚJ ÉPÍTÉSŰ, KÉTLAKÁSOS IKERHÁZ – NYÁREGYHÁZA, KÖZPONTI, CSENDES UTCÁBANNINCS ÁTHALLÁS! AZ IKERFELEK CSAK AZ AUTÓBEÁLLÓNÁL ÉRINTKEZNEK!MODERN, ENERGIATAKARÉKOS OTTHON – KIVÁLÓ ELRENDEZÉSSELNyáregyházán, rendezett, nyugodt környezetben kínálunk megvételre egy új építésű, kétlakásos ikerház egyik lakását, amely ideális választás családok számára, akik tágas, jól átgondolt elrendezésű otthont keresnek.FŐBB ADATOKLakás alapterület: 92,83 m²Terasz: 8,5 m²Fedett gépkocsibeálló: ~16,5 m²Szobák száma: 3 szoba + nappali + külön konyha-étkezőDupla komfort: 2 fürdőszobaHELYISÉGEK ELRENDEZÉSEAz alaprajz kiváló funkcionalitást biztosít:Tágas, világos nappali (18,45 m²)Külön konyha-étkező (11,70 m²)3 kényelmes méretű hálószoba (12–13 m²)2 fürdőszobaHáztartási helyiségTöbb közlekedő, jól szeparált térhasználat➡️ Ideális akár nagyobb családnak is, vagy otthoni munkavégzéshez.MŰSZAKI TARTALOM – MINŐSÉGI KIVITELEZÉSAz épület korszerű, energiahatékony szerkezettel készül:30 cm Porotherm Klíma tégla falazat10 cm grafitos EPS homlokzati szigetelés25 cm födémszigetelésVasbeton alaplemez + több rétegű hő- és vízszigetelésTető: betoncserép fedés, szellőző légréteggelLábazati XPS szigetelés➡️ Az ingatlan alacsony rezsijű, hosszú távon gazdaságos fenntartású.ELŐNYÖKÚj építés – modern műszaki tartalomKétlakásos kialakítás – jó szomszédi viszony, mégis privát élettérPraktikus, jól élhető alaprajzgépkocsibeállóSaját teraszCsendes, családi házas övezetELHELYEZKEDÉSNyáregyháza:Nyugodt, kertvárosi környezetJó megközelíthetőség Budapest irányábaIdeális választás azoknak, akik a város zajától távol, mégis elérhető közelségben szeretnének élniKINEK AJÁNLOM?CsaládosoknakNyugodt környezetet keresőknekBefektetőknekÖSSZEFOGLALVAModern, energiatakarékos, jól átgondolt elrendezésű új otthon – kompromisszumok nélkül.Díjmentes hitelügyintézés – összes bank ajánlata egy helyenNem adta még el ingatlanát?Ne adja el piaci ár alatt!Hívjon egy díjmentes felmérésre.További információért, és megtekintésért várom megkeresését, akár hétvégén is!

Hirdető adatai

Hirdető neve: Otthon & City ingatlan iroda
Kapcsolattartó: Kaufmann Norbert
Hirdető telefonszáma: +36708507198
Honlap: -