Budapest, IX.kerület


 

Ingatlan adatai

Irányár: 78 000 000 Ft
Típus: lakás (tégla)
Kategória: eladó
Alapterület: 55 m2
Fűtés: távfűtés
Állapota: -
Szobák száma: 2
Építés éve: 1980
Szintek száma: -
Telekterület: -
Kert mérete: -
Erkély mérete: 4 m2
Felszereltség: -
Parkolás: -
Kilátás: utcai
Egyéb extrák:  
-

Részletes leírás

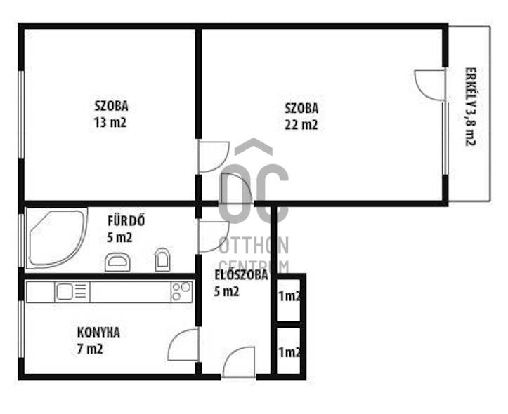
Eladásra kínálok egy felújított 55 m²-es, 2 szobás, 2. emeleti erkélyes lakást a IX. kerület zöldövezeti részén a József Attila lakótelepen, a Távíró utcában. A Lakás: - 55 m², 2 szobás, 3,8 m² erkély - 2. emeleti - DNy-i tájolásának köszönhetően nagyon világos - Műszakilag, esztétikailag igényesen felújított - Műanyag nyílászárók - Gépesített és bútorozott - Távfűtés, egyedi méréssel - Közös költség: 17.600 FtA Társasház: - 4 emeletes - Szépen rendben és karbantartott tégla ház, külső homlokzat és a lépcsőház is jó állapotú - Kiváló közös képviselettel rendelkezik - Nyugodt, csendes, normális lakóközösség - Lifttel nem rendelkezikA lakótelep egyik legnagyobb előnye a rengeteg zöldfelület és park, amely kellemes környezetet biztosít sétához, sportoláshoz vagy akár családi kikapcsolódáshoz. A környék csendes, rendezett, így tökéletes választás fiatal pároknak, családoknak és idősebbeknek is.Kiváló közlekedés jellemzi: a metró, villamos és buszjáratok gyors és kényelmes eljutást biztosítanak a belvárosba, így ideális azok számára is, akik a város központjában dolgoznak, de nyugodtabb környezetben szeretnének élni.A környéken minden megtalálható, ami a mindennapokhoz szükséges: boltok, piac, iskola, óvoda, gyógyszertár és orvosi rendelő – minden pár perc sétával elérhető, így valódi kényelmet nyújt a lakók számára.Kérdés esetén állok rendelkezésére. A lakás rugalmasan megtekinthető a hét bármely napján.Egyedi igényekre szabott lakáshitelekkel állunk rendelkezésére.Bankfüggetlen Hitelcentrumunk az országban elérhető összes bank és hitelintézet ajánlatát versenyezteti az Ön számára díjmentesen.Munkatársaink nagy szakmai tapasztalattal, teljes körű CSOK PLUSZ és OTTHON START PROGRAM ügyintézéssel várják Önt előre egyeztetett időpontban akár a normál munkaidő után is.

Hirdető adatai

Hirdető neve: Otthon Centrum
Kapcsolattartó: Simon Péter
Hirdető telefonszáma: +36 70 716 8741
Honlap: -