Pest megye, Bugyi


 

Ingatlan adatai

Irányár: 80 000 000 Ft
Típus: ház
Kategória: eladó
Alapterület: 80 m2
Fűtés: elektromos
Állapota: új
Szobák száma: 2
Építés éve: 2026
Szintek száma: -
Telekterület: 500 m2
Kert mérete: 500 m2
Erkély mérete: -
Felszereltség: -
Parkolás: -
Kilátás: -
Egyéb extrák:  
-

Részletes leírás

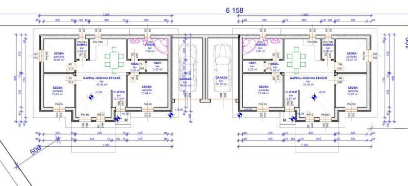
ÚJ ÉPÍTÉSŰ IKERHÁZ ELADÓ BUGYI KÖZPONTI RÉSZÉNBugyi kedvelt, családi házas övezetében, a központhoz közel – boltok és iskola szomszédságában – kínálunk megvételre egy új építésű, magas műszaki tartalommal kivitelezett ikerház egyik lakását.A 1130 nm-es telken épülő két lakás kizárólagos használatú telekrésszel rendelkezik, ügyvéd által ellenjegyzett használati megosztással. Nincs közös használat, így ideális választás azok számára, akik önálló életteret keresnek.Főbb műszaki jellemzők:Levegő-víz hőszivattyús fűtési rendszerTeljes padlófűtés3 rétegű nyílászárók (redőny és szúnyogháló opcionálisan)30 cm Via blokk falazat10 cm grafitos homlokzati hőszigetelés8 cm XPS lábazati szigetelés10 cm lépésálló talajszigetelés30 cm födémszigetelésSzeglemezes tetőszerkezet, beton cserépfedéssel (választható szín)Függesztett álmennyezetAz ingatlan 2 vagy 3 szobás kialakítással is kérhető, az alaprajz igény szerint módosítható.Alap árak a műszaki tartalomban:Burkolatok: 6.000 Ft / nmBeltéri ajtók: 60.000 Ft / dbBejárati ajtó: 150.000 FtSzaniterek: 250.000 FtÁtadás: szerződéstől számított 6 hónapon belülA vásárlás már 20% önerőtől leköthető. CSOK és egyéb hitelkonstrukciók igénybe vehetők, teljes körű ügyintézési segítséggel.Referenciamunkák megtekinthetők!

Hirdető adatai

Hirdető neve: Dabas Régió
Kapcsolattartó: Heszlerné Szilvia
Hirdető telefonszáma: 06204500850
Honlap: -