Pest megye, Budaörs


 

Ingatlan adatai

Irányár: 260 000 000 Ft
Típus: ház
Kategória: eladó
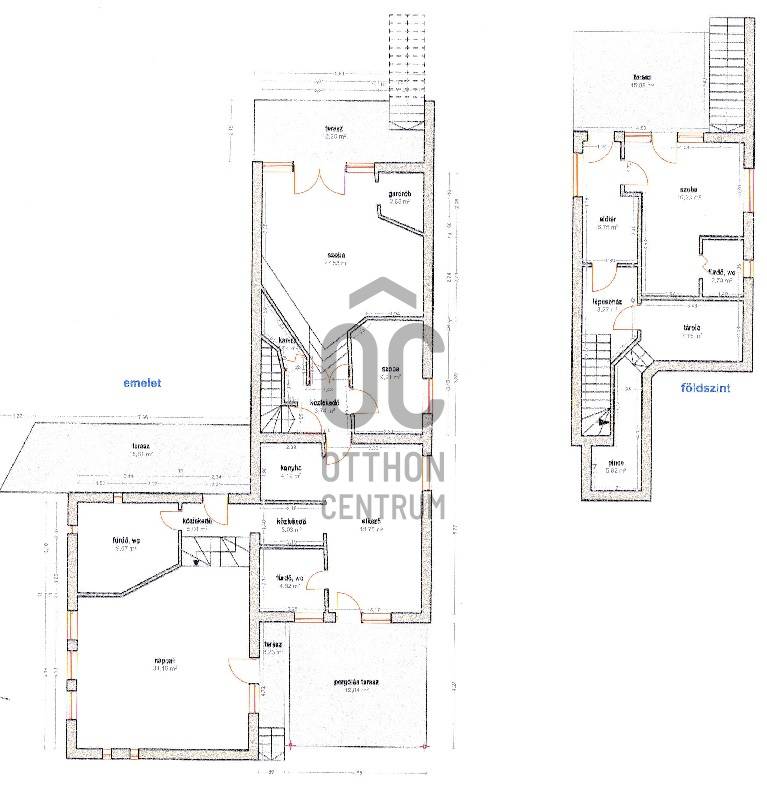
Alapterület: 197 m2
Fűtés: gáz (cirko)
Állapota: -
Szobák száma: 4
Építés éve: 2003
Szintek száma: -
Telekterület: 1 264 m2
Kert mérete: 1 264 m2
Erkély mérete: 30 m2
Felszereltség: -
Parkolás: -
Kilátás: -
Egyéb extrák:  
-

Részletes leírás

Budaörs-Törökugrató közelében, Déli tájolású, panorámás, 1312 nm-es, összközműves ingatlan 200 nm-es házzal, nagy telekkel eladó.A ház, egy 2 szintes, dupla komfortos épület, később épült hozzá az új rész (jobb oldali szárny) a nagy nappalival, padlófűtéssel.Az épület Ytong falazattal, homlokzati szigeteléssel, vasbeton födémmel, korszerű fa nyílászárókkal, Kanadai zsindellyel fedett, a fő teraszán modern, nyitható pergolával, 2 garázshellyel, ezen kívül akár 3 autó számára beállási lehetőség, 3 terasz, 3 fürdőszoba, nagy nappali, kandalló és még sok minden más is.A felső szinten a nappalin kívül 2 szoba (az egyik saját terasszal és onnan lejárattal a kertbe), 2 fürdőszoba, kis konyha, nagy étkezővel, teraszkapcsolattal az alsó szinten egy kis garzon, innen közös vagy akár önálló bejárattal is megközelíthető az emelet.Gáz-cirkó készülék, amely a fűtést (radiátorokon keresztül) és a melegvizet is biztosítja, a nappaliban hangulatos kandalló.A telek felső felén, az épület felett, kellemes kikapcsolódást ígérő fák által árnyas kert és (a pergolás) terasz.A megközelíthetősége, tájolása, a telek mérete, a ház szeparált életterei, nagy és árnyas teraszai, panorámája, az üzletek, szolgáltatások, óvoda, iskola, a gyalogos vagy tömegközlekedés gyors elérhetősége teszik remek lehetőséggé akár 1 vagy 2 család, vagy 2 generáció számára is ezt a kiváló lokációjú ingatlant.

Hirdető adatai

Hirdető neve: Otthon Centrum
Kapcsolattartó: Fuchs Róbert
Hirdető telefonszáma: +36 70 461 9646
Honlap: -