Zala megye, Zalaegerszeg


 

Ingatlan adatai

Irányár: 104 900 000 Ft
Típus: ház
Kategória: eladó
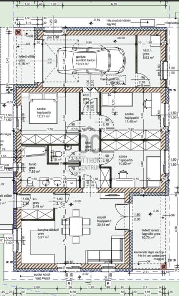
Alapterület: 130 m2
Fűtés: -
Állapota: új
Szobák száma: 4
Építés éve: 2026
Szintek száma: -
Telekterület: 700 m2
Kert mérete: 700 m2
Erkély mérete: 11 m2
Felszereltség: -
Parkolás: -
Kilátás: -
Egyéb extrák:  
-

Részletes leírás

Van egy pont, amikor már nem kompromisszumot keresi, hanem végre azt, ami igazán Önhöz illik. Ez a 130 nm-es, egyszintes családi ház pontosan erről szól.Tágas nappali + 3 külön nyíló szoba – ahol mindenki megtalálja a saját terét. Letisztult formák, modern megoldások és egy otthon, ami már az első pillanatban megérinti.✅ Amitől igazán különleges:- 700 nm-es telek- Nappali +3 szoba- Garázs– Masszív Porotherm 30 N+F neo Rapid Dryfix falazat + 20 cm hőszigetelés → nyugalom és energiatakarékosság– 3 rétegű, barna fóliás nyílászárók → elegancia kívül-belül– Rejtett redőnyrendszer szúnyoghálóval → praktikum kompromisszumok nélkül– Bramac Tectura Novo antracit tető → karakteres megjelenés– BOSCH hőszivattyús rendszer padlófűtéssel → jövőálló technológia, alacsony rezsi– Prémium Ravak és Grohe fürdőszobai szaniterek → válassza ki, ami igazán Ön– Szabadon választható burkolatok → formálja a saját stílusára✅ A kulcsrakész állapot nem csak ígéret:– térkövezett kocsibeálló– járda– minden készen áll, hogy beköltözzönEz nem egy sablonház. Ez egy lehetőség arra, hogy végre olyan otthona legyen, ami Önről szól.✅ Nekeresdi városrész – nyugodt környezet, mégis közel mindenhez.Amennyiben a képek és a leírás alapján az ingatlan felkeltette az érdeklődését, keressen bizalommal a megadott elérhetőségeken, keresse az ingatlant a honlapunkon, több kép is segíti Önt a választásban!Irodánk teljes körű, díjmentes szolgáltatást nyújt kereső ügyfeleinknek, amennyiben Önnek hitelre van szüksége, segítünk! Szakszerű tanácsadással, hitel ügyintézéssel, energetikai tanúsítvány elkészítésével és kedvező díjszabású ügyvéddel nyújtunk segítséget!

Hirdető adatai

Hirdető neve: Otthon Centrum
Kapcsolattartó: Nikitscher-Rigó Diána
Hirdető telefonszáma: +36 70 412 5336
Honlap: -