Zala megye, Bocfölde


 

Ingatlan adatai

Irányár: 139 000 000 Ft
Típus: ház
Kategória: eladó
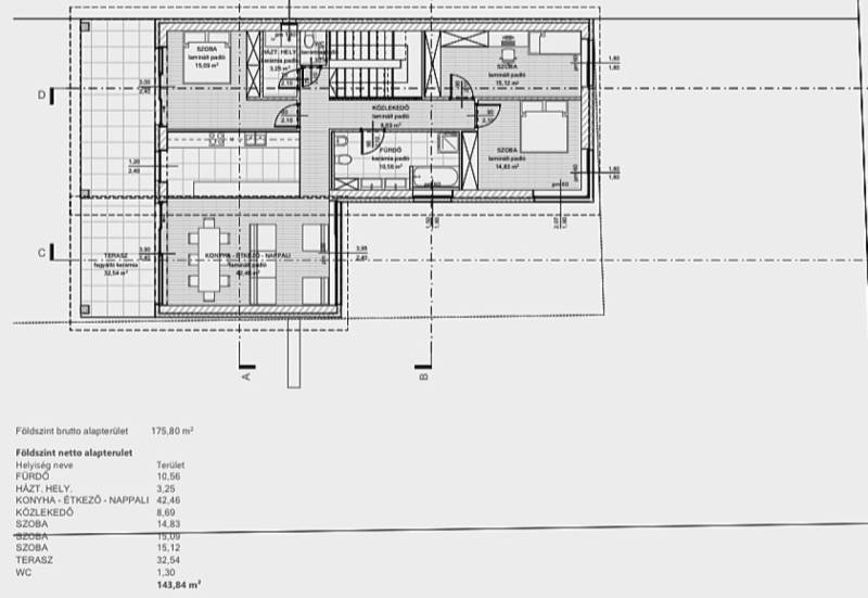
Alapterület: 274 m2
Fűtés: -
Állapota: új
Szobák száma: 4
Építés éve: 2026
Szintek száma: -
Telekterület: 1 011 m2
Kert mérete: 1 011 m2
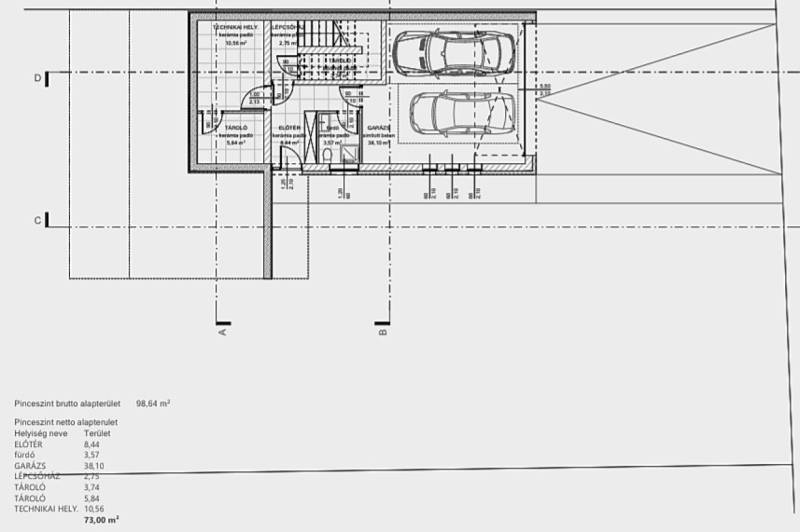
Erkély mérete: 32 m2
Felszereltség: -
Parkolás: -
Kilátás: udvari
Egyéb extrák:  
-

Részletes leírás

PANORÁMÁS, PRÉMIUM, ÚJ ÉPÍTÉSŰ CSALÁDI HÁZ BOCFÖLDÉN – ZALAEGERSZEGTŐL PÁR PERCRE!Van az a pillanat, amikor egy kilátás mindent eldönt.Ez az otthon pontosan ilyen.Bocfölde egyik legszebb, panorámás részén, csendes, zöld környezetben épül ez a modern, új építésű családi ház, amely tökéletes egyensúlyt teremt a nyugalom és a város közelsége között. Zalaegerszeg mindössze néhány perc autóval, mégis egy teljesen más, nyugodtabb világba érkezünk haza minden nap.A 1011 m²-es telken megvalósuló, 216 m²-es otthon minden részlete a kényelmes, élhető családi életet szolgálja. A két szinten kialakított elrendezés átgondolt, a terek világosak, jól használhatók, és természetes kapcsolatban állnak a környezettel.A felső lakószinten egy tágas, amerikai konyhás nappali–étkező fogad, amely a családi élet központja. Innen nyílik a 32 m²-es panorámás terasz, amely nem csupán egy kültéri tér, hanem az ingatlan egyik legnagyobb értéke – egy hely, ahol a reggelek nyugalomban indulnak, az esték pedig különleges hangulatban telnek.A három külön nyíló hálószoba kényelmes privát teret biztosít, míg a fürdőszoba, háztartási helyiség és külön toalett a mindennapi praktikumot szolgálják.Az alsó szinten található 38 m²-es dupla garázs, valamint további helyiségek – előtér, fürdő, tárolók és gépészet – biztosítják a funkcionalitást és a rendezett életteret.⚙️ MODERN MŰSZAKI TARTALOMAz ingatlan korszerű, időtálló megoldásokkal épül:-30 cm Porotherm falazat20 cm homlokzati szigetelés-hőszivattyús fűtés padlófűtéssel-háromrétegű nyílászárók-betonfödém-antracit tetőcserép.Ez a műszaki háttér nemcsak kényelmet, hanem hosszú távon gazdaságos fenntarthatóságot is biztosít.⚙️EGYEDI LEHETŐSÉGAz ingatlan jelenleg kivitelezés alatt áll, így még lehetőség van arra, hogy az új tulajdonos bizonyos belső kialakítási elemeket saját igényeire szabjon. Ez ritka lehetőség egy ilyen adottságú, panorámás új építésű ingatlan esetében.⚙️ELHELYEZKEDÉScsendes, panorámás környezetcsaládias, rendezett utcaZalaegerszeg pár perc alatt elérhető⚙️FŐBB ADATOKTelek: 1011 m²Lakóterület: 216 m²Nappali + 3 hálószoba32 m² panorámás terasz38 m² dupla garázsÚj építés, modern gépészetEz az ingatlan ideális választás azoknak, akik nem szeretnének kompromisszumot kötni: panoráma, nyugalom, modern technológia és városközeli elhelyezkedés egyetlen otthonban.Irányár: 139 000 000 FtRészletes műszaki tartalommal, aktuális készültségi szinttel és személyes megtekintéssel kapcsolatban keressen bizalommal.A vásárlás teljes folyamatában támogatást nyújtok, beleértve a finanszírozást, jogi hátteret és igény esetén a belső kialakítás szakmai támogatását is.

Hirdető adatai

Hirdető neve: GDN Ingatlanhálózat
Kapcsolattartó: Juhász Judit
Hirdető telefonszáma: +36-70-883-0574
Honlap: -