Hajdú-Bihar megye, Debrecen


 

Ingatlan adatai

Irányár: 79 848 000 Ft
Típus: lakás (újépítésű)
Kategória: eladó
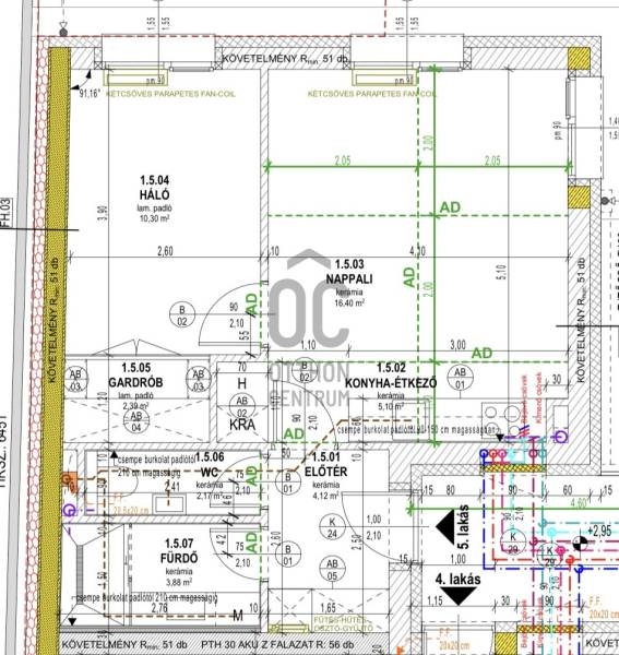
Alapterület: 44 m2
Fűtés: -
Állapota: új
Szobák száma: 2
Építés éve: 2026
Szintek száma: -
Telekterület: -
Kert mérete: -
Erkély mérete: -
Felszereltség: -
Parkolás: -
Kilátás: kertre néző
Egyéb extrák:  
-

Részletes leírás

Projekt bemutatásaDebrecen Belvárosában épült, 15 lakásos társasházak kivételes lehetőséget kínál mindazok számára akik a belvárosi élet előnyeit szeretnék élvezni.A modern megjelenés és a magas minőségű kivitelezés mellett a tágas, jól átgondolt alaprajzok biztosítják a kényelmes életteret. A 42 - 100 nm lakások nagy üvegfelültekkel készültek, és minden lakás erkélykapcsolattal rendelkezik. A nagyméretű üvegfelületeknek köszönhetően a terek természetes fénnyel telnek meg, míg a tágas erkélyek nyugalom és a kikapcsolódás színterét biztosítják.A tervezés során kiemelt szempont volt az energiahatékonyság és a lakók komfortja. Ennek érdekében hőszivattyús hűtés - fűtés, minőségi nyílászárók, valamint elektromos autók töltésére alkalmas lehetőség is kialakításra került.A lakások akár már juniusi költözéssel birtokba vehetők. Az ingatlanok teljes körűen, ízlésesen bútorozottak: prémium minőségű konyhabútor, étkező, nappali berendezés, valamint beépített előszoba és gardrószekrények biztosítják a harmónikus és praktikus életteret.Amennyiben az ingatlan felkeltette érdeklődését, kérdése van, vagy szeretné megtekinteni, hétvégén is szívesen fogadom hívását!

Hirdető adatai

Hirdető neve: Otthon Centrum
Kapcsolattartó: Szabó Zsuzsanna
Hirdető telefonszáma: +36 70 461 9281
Honlap: -