Budapest, VI.kerület


 

Ingatlan adatai

Irányár: 650 000 000 Ft
Típus: iroda
Kategória: eladó
Alapterület: 894 m2
Fűtés: -
Állapota: -
Szobák száma: -
Építés éve: -
Szintek száma: -
Telekterület: -
Kert mérete: -
Erkély mérete: -
Felszereltség: -
Parkolás: -
Kilátás: -
Egyéb extrák:  
-

Részletes leírás

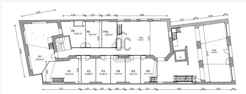
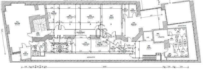
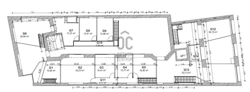
Az eladásra kínált ingatlan két helyrajzi szám alatt van nyilvántartva egy 78 és egy 816 m2-es részből áll, melyek össze vannak nyitva és pince, földszint + galéria tagolásúak. Az összes bérbeadható terület 851 m2.Egy az 1930-as években épült műemlék társasházban található, az épület külseje és homlokzata karbantartott és kiváló állapotú.Az ingatlannak üvegportálos utcai bejárata van.Az ingatlan jelenleg bérbe van adva, egy része kávézóként, másik része szolgáltatott irodaként van hasznosítva, az alábbi eloszlásban:Kávézó: földszinten 129,7 m2, galérián 94,5 m2, pinceszinten 92,3 m2.Szolgáltatott irodák: földszinten 212,9 m2, galérián 160,5 m2, pinceszinten 180,4 m2. A területet a tulajdonos részleges érdekeltségi körébe tartozott szervezet bérli, 8500 EUR/ hó bérleti díjon.Az eladási ár nettó ár, további áfa terheli.

Hirdető adatai

Hirdető neve: Otthon Centrum
Kapcsolattartó: Nagy Tibor
Hirdető telefonszáma: +36 70 716 9901
Honlap: -