Pest megye, Százhalombatta


 

Ingatlan adatai

Irányár: 54 990 000 Ft
Típus: lakás (panel)
Kategória: eladó
Alapterület: 47 m2
Fűtés: távfűtés
Állapota: -
Szobák száma: 1+1
Építés éve: 1985
Szintek száma: 1
Telekterület: -
Kert mérete: -
Erkély mérete: -
Felszereltség: -
Parkolás: -
Kilátás: utcai
Egyéb extrák:  
-

Részletes leírás

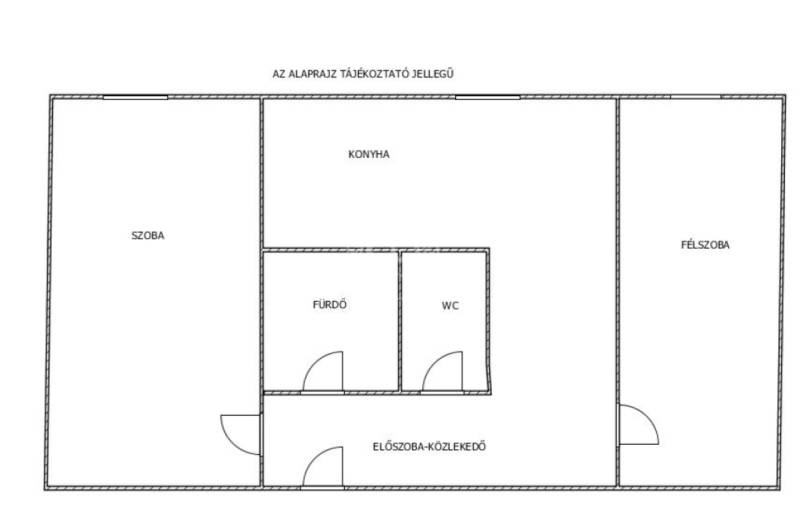
Százhalombattán a Déli lakótelepen kínálunk megvételre egy első emeleti, 47 nm nagyságú, jó állapotú, napfényes, 1+1/2 szobás, középső lakást.Helyiségei:- közlekedő- fürdőszoba- wc- konyha, új konyhabútorral- klímás nappali szoba- félszobaFűtése távfűtés, rezsije alacsony.A társasház külső szigetelése és az ablakok cseréje megtörtént. Az ingatlan rövid időn belül birtokba vehető, befektetésnek is kiváló lehetőség.Irodánk teljes körű banki hitellehetőségekkel, pénzügyi konstrukciókkal, állami támogatásokkal díjmentesen áll az érdeklődők rendelkezésére.Amennyiben további tájékoztatásra van szüksége, vagy szeretné megtekinteni az ingatlant kérem, hívjon a hét bármely napján.A hirdetésben szereplő adatok tájékoztató jellegűek, nem minősülnek ajánlattételnek.

Hirdető adatai

Hirdető neve: GDN Ingatlanhálózat
Kapcsolattartó: Fodor Ágnes
Hirdető telefonszáma: +36-20-975-6132
Honlap: -