Győr-Moson-Sopron megye, Sopron


 

Ingatlan adatai

Irányár: 53 900 000 Ft
Típus: lakás (tégla)
Kategória: eladó
Alapterület: 55 m2
Fűtés: gáz (cirko)
Állapota: -
Szobák száma: 2
Építés éve: 1993
Szintek száma: -
Telekterület: -
Kert mérete: -
Erkély mérete: -
Felszereltség: -
Parkolás: -
Kilátás: utcai
Egyéb extrák:  
-

Részletes leírás

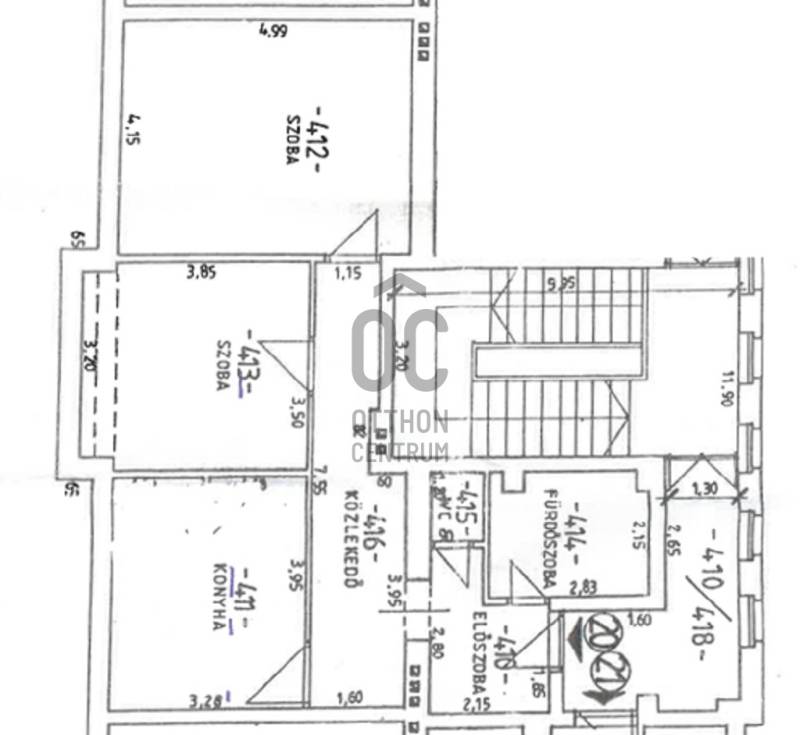
Belvárosi Ékszerdoboz Sopron Szívében – Kiváló Elrendezés, Fiatalos Hangulat!Eladóvá vált egy rendkívül jó adottságokkal rendelkező, bruttó 73 nm-es (nettó 55 nm) tetőtéri lakás Sopron történelmi belvárosának közvetlen közelében! Ha szereted a várost, de vágysz a nyugalomra is, ez az ingatlan tökéletes választás számodra. Az ingatlan főbb jellemzői:- Kiváló elhelyezkedés: Sopron belvárosa, minden karnyújtásnyira (boltok, éttermek, közlekedés).- Építés éve: 1993 – stabil, jó állapotú társasház- Emelet: 3. emelet (tetőtéri elhelyezkedés, nincs felső szomszéd!)- Alapterület: Bruttó 73 nm / Nettó 55 nm – a tágas terek és a praktikus kihasználhatóság találkozása.- Elrendezés: 2 különnyíló, világos szoba, kényelmes konyha-étkező és fürdőszoba - Gáz-cirkó kazán - 5 éves velux ablakok- 14.000 közös költség- pincében szokásjog alapján saját tároló kb 10 nmBefektetők esetén a jelenlegi bérlő szívesen maradna. AZ ÁR AZ ÖSSZES BÚTORT TARTALMAZZA!!!✨ Miért érdemes ezt a lakást választanod?A lakás belső kialakítása barátságos és világos. A bruttó 73 négyzetméter rengeteg tárolási lehetőséget és tágas érzetet biztosít, miközben a nettó 55 négyzetméter után fizeted a fenntartási költségeket. Ideális választás fiatal pároknak első lakásnak, vagy befektetőknek kiadásra, hiszen a belvárosi lokáció miatt azonnal bérbe adható.

Hirdető adatai

Hirdető neve: Otthon Centrum
Kapcsolattartó: Németh Ildikó
Hirdető telefonszáma: +36 70 388 5381
Honlap: -